Units 1 And 2 The Fireworks, Millwey Rise Industrial Estate EX13

Units 1 And 2 The Fireworks, Millwey Rise Industrial Estate EX13

Axminster 1.2 miles
Trinity Square (Stop A) 0.9 miles
Rail Station 1.2 miles

Two refurbished industrial units to let on established trading estate.

G.I.As:
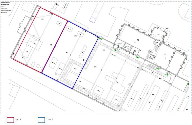
Unit 1: 331.75 Sq M (3,570 Sq ft)
Unit 2: 361.25 Sq M (3,887 Sq ft)

Each unit comes with a front yard for parking and storage. 1 mile to Axminster town centre.


LOCATION
Units 1 & 2 The Fireworks are located on an established industrial estate 1 miles from Axminster and 6.5 miles from Chard.

Nearby occupiers include Axminster Tools, Screwfix and Axminster kitchens.


DESCRIPTION
Units 1 & 2 are currently being refurbished with profile metal cladding to elevations, plastic coated pedestrian security doors to the front and fire exits to the rear to be constructed. Both units will have electric roller shutter doors, concrete floors, LED lighting, WC facilities and kitchenettes.

Each unit will have a concrete apron to front for unloading with the remainder of the yard which can be enclosed for storage and parking.


Unit 1 - G.I.A of 331.75 Sq M (3,570 Sq ft)

End of terrace industrial unit with a depth of 25.00m and a width 13.27m. Minimum eaves height of 6.51m and a maximum of 7.76m.

Plastic coated electric roller shutter door with a width of 4.05m and a height of 4.95m.


Unit 2 - G.I.A of 361.25 Sq M (3,887 Sq ft)

Mid of terrace industrial unit with a depth of 25.00m and a width 14.45m. Minimum eaves height of 6.51m and a maximum of 7.76m.

Plastic coated electric roller shutter door with a width of 4.00m and a height of 4.95m.


TENURE & RENTAL
Available to let on new leases with flexible terms to be agreed at the following quoting rents:
Unit 1: £20,000 per annum plus VAT.
Unit 2: £20,000 per annum plus VAT.


VIEWING
All viewings should be made through the sole agent, Carter Jonas: Taunton office.

BUSINESS RATES
The units have not been separately assessed at this time. For verification purposes, interest parties are advised to make their own enquiries.

EPC
Rated C.

Key property details
Tenure
Leasehold £20,000 Per Annum Exclusive
Type
General Industrial and Storage & Distribution
Carter Jonas reference
20018901
Property agent
Stephen Richards

Suggested properties

Here are a few properties you might like, but within 2 extra miles of your current search

163 to 277 Sq M (1,754.5 to 2,981.6 Sq Ft)
Leasehold
646 Sq Ft (60 Sq M)
Leasehold
1,428 Sq Ft (132.7 Sq M)
Leasehold
4,192 to 16,023 Sq Ft (389.4 to 1,488.6 Sq M)
Leasehold
61,833 Sq Ft (5,744.5 Sq M)
Leasehold
Thinking of selling?

Find out what your property is worth