Wendover Road, Stoke Mandeville HP22

Wendover Road, Stoke Mandeville HP22

To be advised

Residential Development Opportunity consisting of
two separate sites with outline planning consents
for 27 dwellings and 16 dwellings. The sites lie two miles south of the town centre of Aylesbury. For sale freehold by informal tender, offers due by 1pm 5 February 2015.

Location

The two sites are located in Weston Turville which is a village and also a civil parish within Aylesbury Vale district. The sites lie approximately two miles south of the town centre of Aylesbury and 1.5 miles from Stoke Mandeville Hospital. Aylesbury is the county town of Buckinghamshire and administrative town of Aylesbury Vale District Council. The town offers a wide selection of local amenities including schools, colleges, shopping centre, cinema and Waterside Theatre. The closest train station is at Stoke Mandeville with direct trains to London in 53 minutes. Aylesbury Station is strategically located on the London to Birmingham line. J7 of the M40 is located less than 16 miles to the south west, J25 of the M25 is located 20 miles to the south and J8 of the M1 is located 21 miles to the east.

Description

Both the sites have been in the ownership of Buckinghamshire County Council (BCC) for many years and formed part of County Farm, an agricultural college which became part of Aylesbury College.

Site A (Hampden Hall)

Site A (Hampden Hall) totals approximately 2.45 acres (0.99 ha) on which are two buildings constructed for the College in the 1970s and includes some student accommodation. Most recently, part of the site was used as offices for the County Council. The site fronts the main road between Aylesbury and Amersham (A413). On two sides the site is surrounded by modern housing and a recently constructed care home and to the south is the former College playing field with open farmland beyond. Vehicular access via Tamarisk Way is an adopted highway.

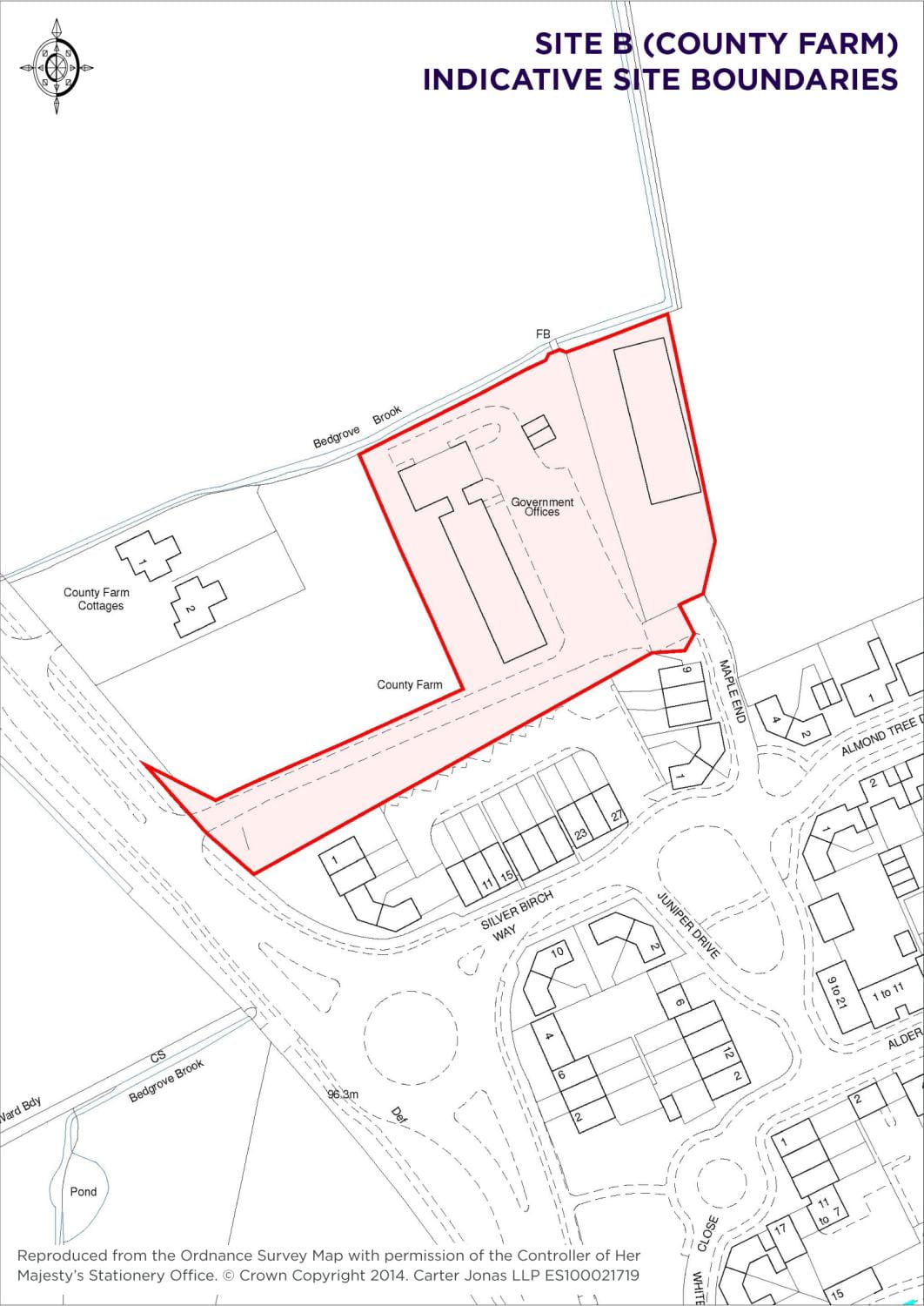
Site B (County Farm)

Site B (County Farm) totals approximately 1.58 acres (0.64 ha), on which there are two buildings. The (Cabinet Office(formerly the Minster of Public Building and Works)) has held a long lease of the majority of the site since the 1970's when an office was constructed for the Ministry of Food and Fisheries (MAFF) however this has been vacant for approximately a decade. The Cabinet Office is the current tenant of the site and has entered into an Agreement for Surrender with BCC and is under an obligation to demolish the building and to yield up a cleared site. The other building was originally constructed by the College as a maintenance shed and it is the intention of the vendor to demolish that building too. The site has a vehicular access to the main road between Aylesbury and Amersham (A413). On two sides the site is surrounded by modern housing and the other two sides open farmland. There is a secondary vehicle access from Maple End.

Planning

Site A (Hampden Hall)
Outline planning permission was granted on 10 February 2014 for 'Demolition of existing buildings and erection of 27 residential units'. The planning reference number is 11/02088/AOP. A s106 agreement in relation to this site and outline planning permission will provide for:
-40% affordable housing

Site B (County Farm)
Approval of reserved matters pursuant to outline permission 09/02130/AOP relating to 'landscaping, layout, scale and appearance for the erection of 16 dwellings' was granted on 12 March 2014. The planning reference number is 13/03552/ADP. A s106 agreement in relation to this site and outlineplanning permission will provide for:
-37.5% affordable housing

Affordable Housing Policy Interim Position Statement June 2014 Aylesbury Vale District Council published an interim statement in June 2014, following the withdrawal of the Vale of Aylesbury Plan (VAP), that sets out the Council's interim policy position on affordable housing before the new Vale of Aylesbury Local Plan (VALP) is prepared. The Council has confirmed it will negotiate for the provision of a minimum of 20% and up to 30% affordable housing on sites of 25 or more dwellings or sites of 1ha or more. Therefore as each separate site area is under the current threshold of 1ha, there is an opportunity for the purchaser to re-submit planning for residential schemes with a lower or nil affordable housing provision subject to current planning policy.

Method of Sale

The freehold interest with the benefit of the outline planning consents of the property is to be offered by informal tender, separately or as a whole. Offers should be made in writing and submitted to the Oxford office of Carter Jonas by 1pm Thursday 5 February 2015 clearly marked for the attention of Alexander Nell MRICS in accordance with the Bidding Guidance contained within the Information Pack.

- The vendors preference is for unconditional offers with an overage that reflects the opportunity to improve the planning permissions in respect of affordable housing.

- The vendors are not required to accept the highest or indeed any offer. They reserve the right to negotiate with preferred bidders where alternative uses are proposed.

- Prospective purchasers should familiarise themselves with the Bidding Guidance contained within the Information Pack.

Tenure

The property is freehold and will be sold with vacant possession subject to maintaining access rights to Aylesbury College's retained land.

Information Pack

An Information Pack containing relevant planning, technical information and offers procedure is available to download from the website:

www.wendoverroadaylesbury.com

Viewing

Strictly by appointment with the selling agent contact:
Oxford 01865 404481
Mayfield House, 256 Banbury Road, Summertown, Oxford OX2 7DE

Alexander Nell T: 01865 404447
E: alexander.nell@carterjonas.co.uk

Emma Jewson T: 01865 404463
E: emma.jewson@carterjonas.co.uk

Key property details
Location
Village
Tenure
To be advised
Carter Jonas reference
OXR140639
Thinking of selling?

Find out what your property is worth