Cann, Shaftesbury SP7

Cann, Shaftesbury SP7

6 Bedroom | Freehold | Outbuildings | Secondary Accomodation | 289.5 acres (117.1 hectares)

Guide price £4,750,000
St Marys Church 3 miles
Bennet Arms 3.4 miles

An attractive residential former dairy farm serviced by a 6-bedroom Grade II Listed period farmhouse, an agriculturally tied 4-bedroom bungalow and a range of dairy and livestock buildings. In all, 289.27 acres. For sale as a whole or in 4 lots.

An attractive residential former dairy farm serviced by a 6-bedroom Grade II Listed period farmhouse. The homestead is located centrally within the holding at the end of a private drive and enjoys outstanding southerly views. Located at the beginning of the entrance drive is a modern 4-bedroom bungalow subject to an agricultural occupancy condition. The farm offers numerous farming, equestrian or biodiversity opportunities.

In all, about 289.47 acres.

For sale as a whole or in 4 separate lots.


The Property
In the recent past, Cannfield Farm has been servicing a productive dairy enterprise but is suitable for a wide range of agricultural, equestrian or lifestyle uses. Set well-back from the council maintained road, at the end of a private drive, the farmhouse stands in its own lawned gardens enjoying outstanding southerly views across both the farm and Melbury Beacon and Bulbarrow Hill in the distance.

At the entrance to the farm, there is a detached 4-bedroom bungalow, built on the site of one of the former gatehouses.

The holding is supported by a good range of predominantly modern dairy, livestock and other farm buildings, ideal to support various livestock or equestrian enterprises.

The land which surrounds the farm and buildings is serviced not only by the farm drive, but also council roads on the north, west and southern boundaries. The land consists of numerous level and good-sized fertile enclosures with much laid to an arable rotation. The topography and nature of the land also offers additional biodiversity opportunities.


Location
Cannfield Farm is located some 2 miles to the south of Shaftesbury and is within easy reach of the A303 and Wincanton to the north. The market downs of Sturminster Newton (10.5 miles) and Blandford Forum (11 miles) lie to the south. Shaftesbury offers a wide range of day-to-day facilities including supermarkets, surgeries and other shops. There is a mainline railway station at Gillingham which offers regular train services to London, Waterloo and Paddington. There are excellent state and independent schools in the area including the Port Regis Preparatory school, Bryanston School, Sherborne School and Hazlegrove Prep School.


Lot 1
Comprising the farmhouse, farm buildings and 165.42 acres.


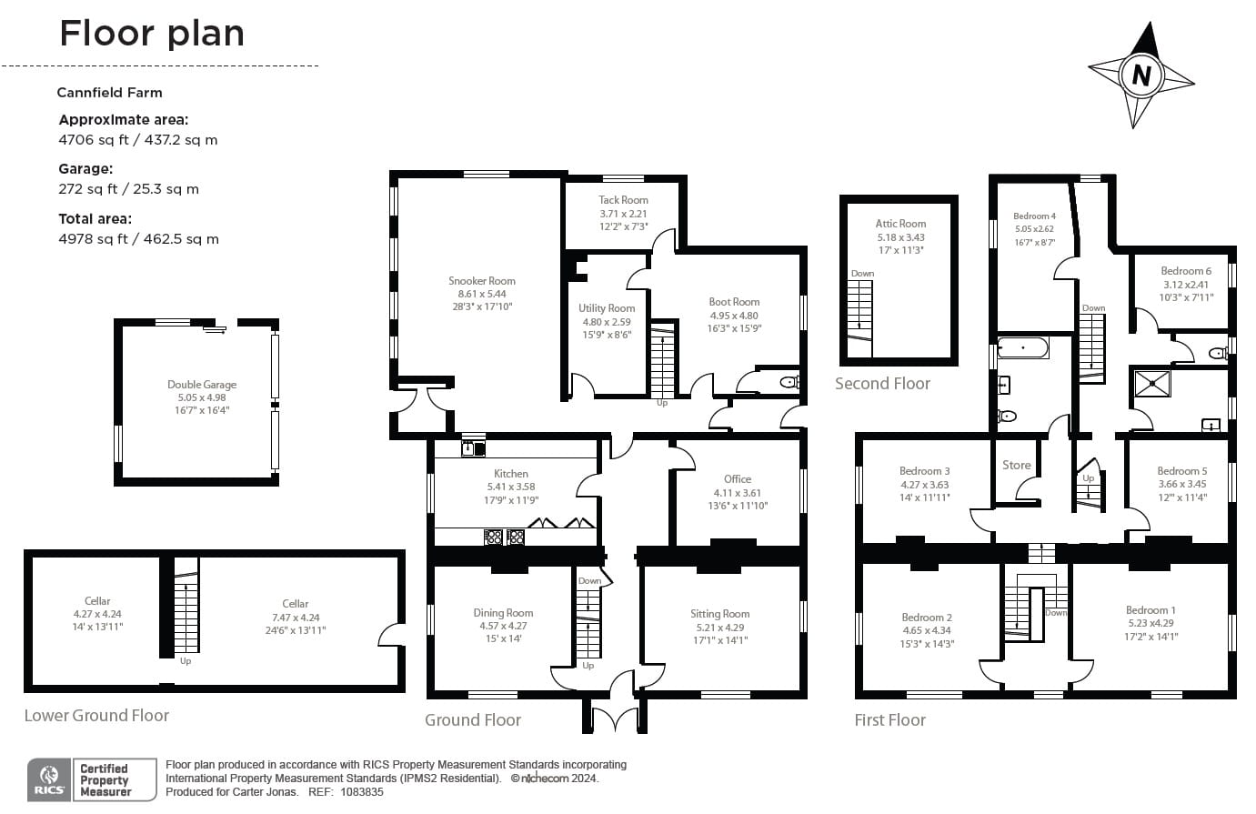
The Farmhouse
Cannfield Farmhouse is situated at the end of a tree-lined private drive with lawned gardens to the south, an area of hardstanding and parking to the east, and a recently constructed stable block offering stables and tack room to the west with a workshop to the rear. Comprising a detached Grade II Listed property constructed in approximately 1830 of render and stone elevations under a slate roof. The house offers enormous charm and character offering good-sized family accommodation but also offering potential to be remodelled or extended to take full advantage of its location.

The property enjoys wide reaching southerly views across both the farm and open countryside beyond including including Melbury Beacon and the Blackmore Vale.

The accommodation on the ground floor currently offers a formal entrance hall with stairs off and good-sized dining and sitting rooms to each side, both dual aspect rooms taking full advantage of the views. The hallway leads to an office with an original marble fireplace, farmhouse style fully fitted kitchen with Aga, and to the rear of the house, a spacious snooker room, further utility room, boot room with cloakroom off and tack room.

At first floor, the stairs lead to a landing with two impressive south facing double bedrooms with a further three double bedrooms, single bedroom, family bathroom, shower room and cloakroom. There is a secondary staircase that leads to attic space. There are cellars below part of the ground floor.


Farm Buildings
The farm is serviced by a range of dairy and livestock buildings, ideal to service a number of farming or equestrian enterprises.


Land
The land provides privacy and amenity to the farmhouse and buildings. Access to the land is off the farm drive and the council road on the western boundary. In the recent past, much of the land has been farmed in an arable rotation in conjunction with the dairy. The home field in front of the house is laid to permanent pasture. The majority of the fields are divided into good-sized, manageable enclosures and are capable of supporting a wide range of enterprises.


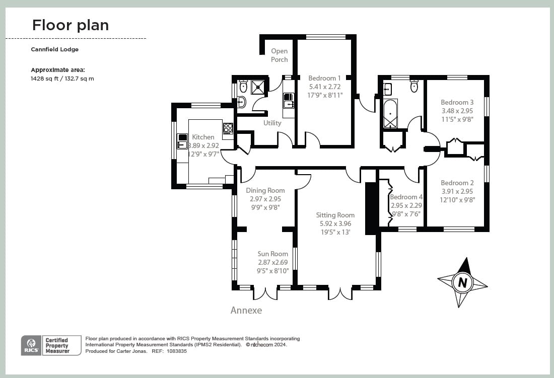
Lot 2: Cannfield Lodge
Located off the entrance drive is a modern, detached, agriculturally tied 4-bedroom bungalow. The bungalow, known as Cannfield Lodge was built on the site of one of a pair of entrance lodges. The bungalow lies within its own garden and is constructed of stone elevations under a tiled roof and offers accommodation of kitchen, utility room, dining room with adjoining conservatory, sitting room, 4-bedrooms and a bathroom.

Lot 3: Land totalling 86.44 acres
A parcel of some 86.44 acres of good-quality arable land, divided into four enclosures enjoying access off the council-maintained road lying on the western boundary.

Lot 4: Land totalling 37.28 acres
A further parcel of highly productive and level arable land. Lying in a strategically advantageous location abutting the A30 and situated close to the town boundaries of Shaftesbury.


Method of Sale
The farm is for sale by private treaty as a whole or in up to 4 lots.

Tenure & Possession
Vacant possession is available upon completion.

Listing Status
The farmhouse is Grade II Listed.

Services
The farm is connected to mains water which services the bungalow and is available when required for the balance of the holding. There is also a private borehole supply that currently services the farmhouse, farm buildings and land.
Mains electricity is available to both dwellings and the farm buildings.
Both dwellings are connected to private drainage systems.

Health & Safety
Potential purchasers are required to take particular care when inspecting the property, bearing in mind the risk of sudden movements from machinery, vehicles and livestock which may be present and operating at the time of inspection, especially in and around the farm buildings. Potential purchasers are requested to wear supportive footwear for viewings and are advised to be conscious of potentially uneven and slippery ground surfaces.

Wayleaves Easements & Rights of Way
The property is being sold subject to and with the benefit of all rights including; rights of way, whether public or private, light, sport, drainage, water and electricity supplies and other rights and obligations, easements and quasieasements and restrictive covenants and all existing proposed wayleaves for masts, pylons, stays, cables, drains, water and gas and other pipes whether referred to in these particulars or not. The farm enjoys a right of way along the most eastern edge of the arable field lying below Charlton Fields Farm. In addition, There is a public bridleway adjoining the southern boundary of the farm.

Sporting, Timber & Mineral Rights
Included within the sale in so far as they are available.

Overage
Lot 4 will be sold subject to an overage in respect of planning for residential development. Should permission be granted within a period of 25 years from completion of the sale, the vendors will be entitled to 25% of the uplift in value as a result of the permission.

Fixtures & Fittings
It should be noted that the Parlour and Dairy fittings are tenants’ fixtures and are excluded from the sale of the farm. The fixtures will be removed before completion and the property made good. These fixtures may be available by separate negotiation.

EPC Ratings
Cannfield Farmhouse: EPC rating of F.
Cannfield Lodge: EPC rating of D.

Council Tax
Cannfield Farmhouse: Band G.
Cannfield Lodge: Band D.

Local Authority
Dorset Council
www.dorsetcouncil.gov.uk

Viewings
By prior appointment with the Vendors’ agents, Carter Jonas 01823 428 590.

Directions
From Shaftesbury, follow the B3081 signed to Blandford/Melbury Abbas, after about 0.7 miles, the farm entrance drive will be found on the left hand side.

The next steps...

Before making an offer on a property you will want to consider your financial situation, your income and outgoings.

Will you finance the purchase of your next property from the sale of an existing property which can put you in a chain, arrange a mortgage through your bank or buy the property outright.

To help you finance your next property purchase, we have a long established relationship with an independent mortgage broker who can discuss your situation with you.

Remember that having a 'mortgage decision in principle' can make you a more attractive buyer when you make an offer on a property. Contact our mortgage advisers for free, no obligation and impartial advice.

Some advantages of a broker are:

  • They do all the legwork for you, working on your behalf with the lender
  • They compare wholesale mortgage rates from a large number of banks and lenders all at once
  • Their wholesale interest rates can be lower than retail (bank branch) interest rates
  • They offer more loan options because they work with numerous banks and lenders
  • They can finance tricky deals because of their knowledge and various lending partners
  • They are typically easier to get in contact with, and are less bureaucratic.

However advantages of working with your bank are:

  • You may be able to build off an existing relationship (and gain discounts if you have a checking or savings account)
  • You may already know the banker who will handle your mortgage
  • Banks may be more accountable than a smaller shop
  • They may offer lower interest rates in some cases
  • Their ability to add mortgage to existing banking profile and make automatic payments from linked account.

When you see a property you are interested in on our website, call us 24/7 to arrange a viewing. Or if you prefer, get in touch via our website and we will call you back to find a time to view the property that suits you.

Once you’ve found a property you want to buy, it’s time to make an offer. A bit of negotiation is to be expected, however don't offer so little that you end up in a lengthy negotiation process, as you might lose the property altogether if someone else makes a higher bid.

If other offers have been made on a property we aren't legally able to tell you what they are, but we may indicate if they were close to the asking price.

If you have a property to sell, why not see how we can help you.

Or if you’re considering letting your property, we can take the stress out of managing your rental, and our award winning lettings team offer a service that can be tailored to your needs.

Combined with nearly 170 years of experience and one of the highest customer satisfaction scores in the industry, Carter Jonas is the perfect property partner.

Why not book a free, no obligation valuation of your property and find out how Carter Jonas can help you make your next move.

Key property details
Additional attributes
Outbuildings Secondary Accomodation
Property type
House Farm
Tenure
Freehold
Total land
289.5 acres (117.1 hectares)
Carter Jonas reference
TAU240044
Thinking of selling?

Find out what your property is worth