Tufton Street, Westminster SW1P

Tufton Street, Westminster SW1P

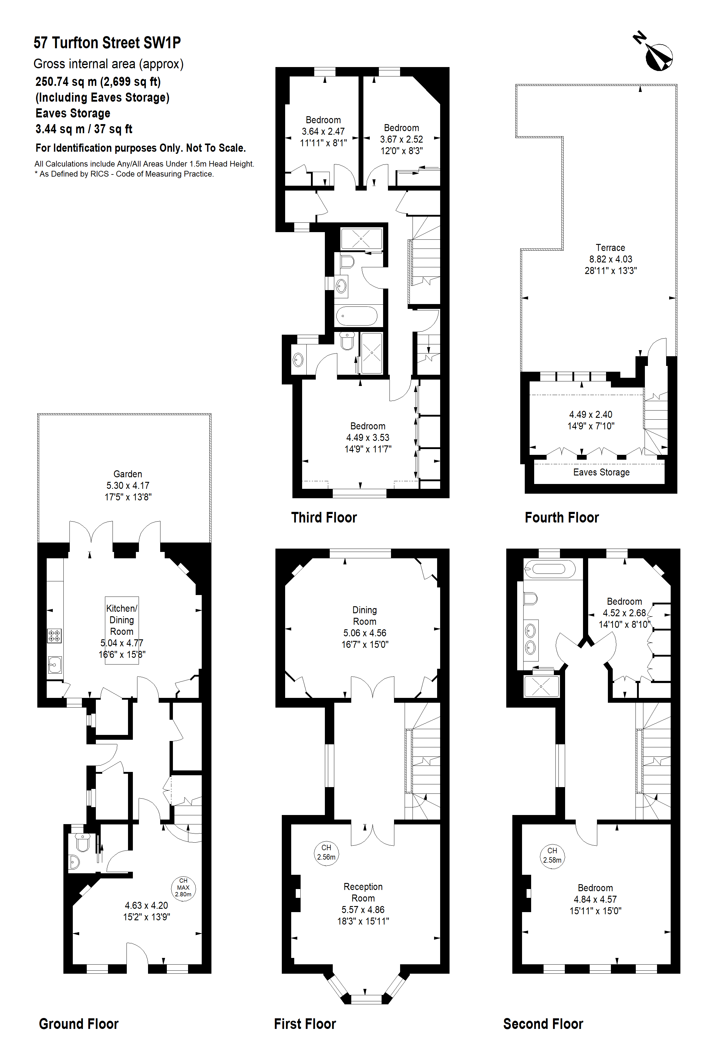
5 Bedroom | 2 Baths

£2,885 per week £12,500 per month
Tufton Court 0 miles
St. James's Park 0.3 miles
Westminster 0.4 miles

A five bedroom house of approximately 2,802 square feet.

This charming refurbished house is set over four floors of a residential street within walking distance of the Houses of Parliament, the River Thames, shopping facilities of Victoria Street and transport links.

The house is arranged over four floors, is well-presented with generous accommodation and has been interior designed throughout to make an ideal family home. It also benefits from a patio garden and a roof terrace.

Westminster lies on the north bank of the River Thames. It has its’ own University and shopping street alongside a substantial residential element which is home to many Members of Parliament, political journalists and students. Its’ core encompasses the famous Historic landmarks of the Houses of Parliament and Westminster Abbey and has been the seat of the Government of England for almost a thousand years. A more recent landmark and tourist attraction is the London Eye from where fantastic views of the City can be seen.

Nearest Tube: Victoria / St James's Park

NHA
The deposit will be £17,307.66 at a rental value of £2,884.61 (asking price).
Holding deposit = 1 weeks rent of £2,884.61
Rent is not payable weekly
Deposit is 6 weeks rent (£2,884.61 pw = £17,307.66 deposit)

Minimum term 12 months

Council Tax Band H

Ultrafast Fibre to the Premises broadband and mobile coverage available

The next steps...

Before making an offer on a property you will want to consider your financial situation, your income and outgoings.

Will you finance the purchase of your next property from the sale of an existing property which can put you in a chain, arrange a mortgage through your bank or buy the property outright.

To help you finance your next property purchase, we have a long established relationship with an independent mortgage broker who can discuss your situation with you.

Remember that having a 'mortgage decision in principle' can make you a more attractive buyer when you make an offer on a property. Contact our mortgage advisers for free, no obligation and impartial advice.

Some advantages of a broker are:

  • They do all the legwork for you, working on your behalf with the lender
  • They compare wholesale mortgage rates from a large number of banks and lenders all at once
  • Their wholesale interest rates can be lower than retail (bank branch) interest rates
  • They offer more loan options because they work with numerous banks and lenders
  • They can finance tricky deals because of their knowledge and various lending partners
  • They are typically easier to get in contact with, and are less bureaucratic.

However advantages of working with your bank are:

  • You may be able to build off an existing relationship (and gain discounts if you have a checking or savings account)
  • You may already know the banker who will handle your mortgage
  • Banks may be more accountable than a smaller shop
  • They may offer lower interest rates in some cases
  • Their ability to add mortgage to existing banking profile and make automatic payments from linked account.

When you see a property you are interested in on our website, call us 24/7 to arrange a viewing. Or if you prefer, get in touch via our website and we will call you back to find a time to view the property that suits you.

Once you’ve found a property you want to buy, it’s time to make an offer. A bit of negotiation is to be expected, however don't offer so little that you end up in a lengthy negotiation process, as you might lose the property altogether if someone else makes a higher bid.

If other offers have been made on a property we aren't legally able to tell you what they are, but we may indicate if they were close to the asking price.

If you have a property to sell, why not see how we can help you.

Or if you’re considering letting your property, we can take the stress out of managing your rental, and our award winning lettings team offer a service that can be tailored to your needs.

Combined with nearly 170 years of experience and one of the highest customer satisfaction scores in the industry, Carter Jonas is the perfect property partner.

Why not book a free, no obligation valuation of your property and find out how Carter Jonas can help you make your next move.

Key property details
Property attributes
Terraced
Era
Period
Additional attributes
Patio Roof Terrace
Locality
Town/City
Energy efficiency rating
D
Letting fees
Download Letting Fees
Total sq ft
2,802 (260.3 Sq M) approx.
Carter Jonas reference
MLE240043

Suggested properties

Here are a few properties you might like, but within 2 extra miles of your current search

£2,600 pcm £600 p/w
2 bedroom flat
£2,000 pcm £462 p/w
2 bedroom flat
£3,300 pcm £762 p/w
3 bedroom maisonette
£2,500 pcm £577 p/w
2 bedroom flat
£2,500 pcm £577 p/w
2 bedroom flat
£6,500 pcm £1,500 p/w
4 bedroom house
£950 p/w £4,117 pcm
3 bedroom flat
£6,000 pcm £1,385 p/w
4 bedroom house
£2,308 p/w £10,000 pcm
4 bedroom house
£3,500 pcm £808 p/w
3 bedroom flat
£2,400 pcm £554 p/w
1 bedroom flat
£6,500 pcm £1,500 p/w
4 bedroom house
Thinking of selling?

Find out what your property is worth