Lot 2 - Bewholme, Driffield YO25

Lot 2 - Bewholme, Driffield YO25

Freehold | Holiday Complex

Offers in excess of £300,000
Beeford Main Street 2.5 miles
Hornsea Cliff Road 3.7 miles

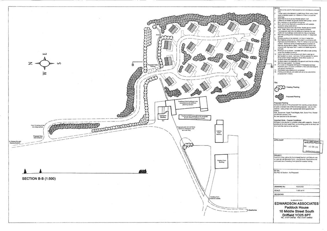
Unique opportunity to acquire a site with planning consent for the development of 20 eco lodges in a desirable location close to the Yorkshire coastline. Extending in all to approximately 5.29 acres (2.14 hectares)

Lot 2 extends in all to approximately 5.29 acres (2.14 hectares).

METHOD OF SALE
Lot 2 - Low Bonwick Farm is offered for sale by private treaty as a separate lot.

If you have downloaded these particulars, please register your interest with the Harrogate office so that you can be kept fully informed as to how we propose to conclude the sale.

TENURE & POSSESSION
The Property is offered for sale freehold with vacant possession available upon completion.

PLANNING
Planning Ref: DC/13/02940/STPLF/STRAT was granted on 23rd December 2013 for the following scheme: “Erection of 20 eco cabins after demolition of existing farm buildings (to replace extant planning permission 10/02427/STPLF).

A material start has been made in respect of each application with East Riding of Yorkshire Council approving the discharge of conditions thereby implementing the respective planning consents.

ADDITIONAL INFORMATION
An additional information pack is available from the selling agents.

Alternatively, copies of the planning consents and approved documents for each scheme are available at https://newplanningaccess.eastriding.gov.uk/newplanningaccess

WAYLEAVES EASEMENTS & RIGHTS OF WAY
The land is sold subject to and with the benefits of all rights of way, water drainage, water courses and other easements quasi or reputed easements and rights of adjoining owners (if any) affecting the same and all existing and proposed wayleaves and other matters registered by any competent authority subject to statute.

HEALTH & SAFETY
Given the potential hazards of a working farm we ask you to be as vigilant as possible when making your inspection for your own personal safety, particularly around the farm buildings and machinery.

VAT
Any guide prices quoted are exclusive of VAT. In the event that the sale of the property or any part of it or any right attached to it becomes chargeable supply for the purposes of VAT, such tax will be payable in addition to the purchase price.

SPORTING TIMBER & MINERAL RIGHTS
The sporting and mineral rights are included insofar as they are owned.

LOCAL AUTHORITIES
East Riding of Yorkshire
www.eastriding.gov.uk

VIEWINGS
Viewings are strictly by prior appointment made through the selling agents.

DIRECTIONS
From Brandsburton take the A165 towards Bridlington. After approximately 0.5 mile turn right signposted Catfoss, Nunkeeling and Bewholme. Continue for approximately 3 miles and on entering the village of Bewholme, turn left onto Skipsea Road. Continue for 2 miles and Low Bonwick Farm is on the right hand side.

WHAT3WORDS
/// novels.obscuring.punctual

The next steps...

Before making an offer on a property you will want to consider your financial situation, your income and outgoings.

Will you finance the purchase of your next property from the sale of an existing property which can put you in a chain, arrange a mortgage through your bank or buy the property outright.

To help you finance your next property purchase, we have a long established relationship with an independent mortgage broker who can discuss your situation with you.

Remember that having a 'mortgage decision in principle' can make you a more attractive buyer when you make an offer on a property. Contact our mortgage advisers for free, no obligation and impartial advice.

Some advantages of a broker are:

  • They do all the legwork for you, working on your behalf with the lender
  • They compare wholesale mortgage rates from a large number of banks and lenders all at once
  • Their wholesale interest rates can be lower than retail (bank branch) interest rates
  • They offer more loan options because they work with numerous banks and lenders
  • They can finance tricky deals because of their knowledge and various lending partners
  • They are typically easier to get in contact with, and are less bureaucratic.

However advantages of working with your bank are:

  • You may be able to build off an existing relationship (and gain discounts if you have a checking or savings account)
  • You may already know the banker who will handle your mortgage
  • Banks may be more accountable than a smaller shop
  • They may offer lower interest rates in some cases
  • Their ability to add mortgage to existing banking profile and make automatic payments from linked account.

When you see a property you are interested in on our website, call us 24/7 to arrange a viewing. Or if you prefer, get in touch via our website and we will call you back to find a time to view the property that suits you.

Once you’ve found a property you want to buy, it’s time to make an offer. A bit of negotiation is to be expected, however don't offer so little that you end up in a lengthy negotiation process, as you might lose the property altogether if someone else makes a higher bid.

If other offers have been made on a property we aren't legally able to tell you what they are, but we may indicate if they were close to the asking price.

If you have a property to sell, why not see how we can help you.

Or if you’re considering letting your property, we can take the stress out of managing your rental, and our award winning lettings team offer a service that can be tailored to your needs.

Combined with nearly 170 years of experience and one of the highest customer satisfaction scores in the industry, Carter Jonas is the perfect property partner.

Why not book a free, no obligation valuation of your property and find out how Carter Jonas can help you make your next move.

Key property details
Additional attributes
Holiday Complex
Property type
Land
Tenure
Freehold
Carter Jonas reference
HGT220072
Thinking of selling?

Find out what your property is worth