Bowden View Lane, Mere WA16

Bowden View Lane, Mere WA16

3 Bedroom | 2 Baths

£2,000 per month £462 per week
Ashley 3.5 miles
Knutsford 3.6 miles
Mobberley 3.9 miles

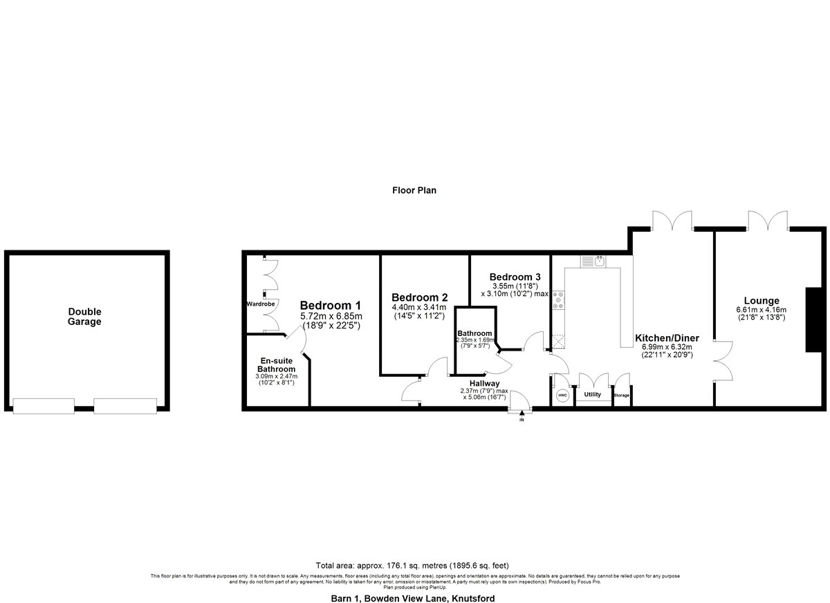
A three bedroom barn conversion with a double garage and driveway parking in Knutsford.

Accommodation comprises -
Ground Floor: Entrance hall, kitchen/dining room, reception room.Principal bedroom with en suite, two further bedrooms and family bathroom.
External: Double garage, stables (used for storage only), formal gardens.

Available unfurnished for a 12 month tenancy from mid February2026.

Pets considered. No access to loft. Please be advised white goods and window dressings are not provided.

Mains electricity, gas heating, water and drainage.

EPC Rating (C). Council Tax Band (G). Please see Chester East Council website for current cost.

Flood Risk – Low.

Internet & Mobile: Information on availability and speeds can be found at checker.ofcom.org.uk

The property is under Phase 2 of the HS2 project, which the Government announced was cancelled in October 2023. Safeguarding in this area has been lifted, however Bill Limits remain in place. If the project were to proceed in this area, the proximity to planned construction is available by request.

Please note that this property is let under a Crown Tenancy, which operates under a different legal framework to standard private tenancies.

At a rent of £2,000 per calendar month -
Holding deposit of 1 weeks’ rent £461
Security deposit of 5 weeks’ rent £2,307

The next steps...

Before making an offer on a property you will want to consider your financial situation, your income and outgoings.

Will you finance the purchase of your next property from the sale of an existing property which can put you in a chain, arrange a mortgage through your bank or buy the property outright.

To help you finance your next property purchase, we have a long established relationship with an independent mortgage broker who can discuss your situation with you.

Remember that having a 'mortgage decision in principle' can make you a more attractive buyer when you make an offer on a property. Contact our mortgage advisers for free, no obligation and impartial advice.

Some advantages of a broker are:

  • They do all the legwork for you, working on your behalf with the lender
  • They compare wholesale mortgage rates from a large number of banks and lenders all at once
  • Their wholesale interest rates can be lower than retail (bank branch) interest rates
  • They offer more loan options because they work with numerous banks and lenders
  • They can finance tricky deals because of their knowledge and various lending partners
  • They are typically easier to get in contact with, and are less bureaucratic.

However advantages of working with your bank are:

  • You may be able to build off an existing relationship (and gain discounts if you have a checking or savings account)
  • You may already know the banker who will handle your mortgage
  • Banks may be more accountable than a smaller shop
  • They may offer lower interest rates in some cases
  • Their ability to add mortgage to existing banking profile and make automatic payments from linked account.

When you see a property you are interested in on our website, call us 24/7 to arrange a viewing. Or if you prefer, get in touch via our website and we will call you back to find a time to view the property that suits you.

Once you’ve found a property you want to buy, it’s time to make an offer. A bit of negotiation is to be expected, however don't offer so little that you end up in a lengthy negotiation process, as you might lose the property altogether if someone else makes a higher bid.

If other offers have been made on a property we aren't legally able to tell you what they are, but we may indicate if they were close to the asking price.

If you have a property to sell, why not see how we can help you.

Or if you’re considering letting your property, we can take the stress out of managing your rental, and our award winning lettings team offer a service that can be tailored to your needs.

Combined with nearly 170 years of experience and one of the highest customer satisfaction scores in the industry, Carter Jonas is the perfect property partner.

Why not book a free, no obligation valuation of your property and find out how Carter Jonas can help you make your next move.

Key property details
Property attributes
Detached
Parking available
Double Garage
Additional attributes
Garden
Energy efficiency rating
C
Letting fees
Download Letting Fees
Carter Jonas reference
BML260007
Thinking of selling?

Find out what your property is worth