39, Regent Street CB2

39, Regent Street CB2

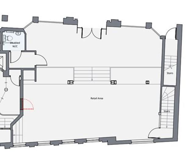
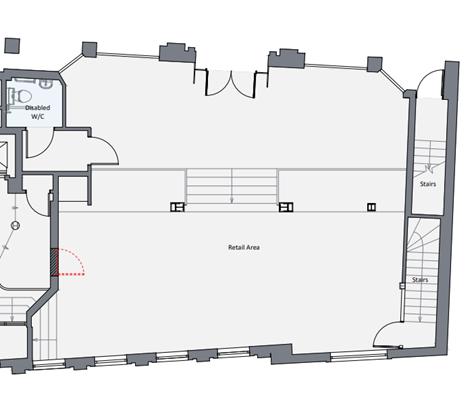
996 sq ft (92.5 sq m)

Cambridge 0.7 miles
Cambridge North 2.1 miles
Shelford 3.6 miles

The property forms part of the ground floor of the Regent Aparthotel, an attractive period style property of cavity brick construction, which was refurbished in 2021/22. Accommodation comprises a ground floor showroom with additional raised retail area and WC. There is also a basement, which is currently fitted with storage and additional WC facilities.

The property benefits from very good levels of natural light provided by full height glazing and attractive frontage to depth ratio. The space is currently fitted as a high-quality kitchen showroom, however, due to the flexible nature of the floor plate would be suitable for a wide range of occupiers.

Location

The property is situated on the eastern side of Regent Street, just off Regent Terrace and Parker's Piece. Regent Street serves as a main arterial route into the city centre, offering excellent levels of foot fall and connectivity.

Within walking distance, you'll find Cambridge Train Station, the historic city centre, Market Square and The Grand Arcade shopping centre. Additionally, Drummer Street Bus Station is a short walk, providing access to all Park & Ride routes.

Nearby occupiers include Starbucks, Zizzi's, Pizza Express and Novi Kitchen & Bar.

Terms & Conditions

The property is available by way of a new effective full repairing and insuring lease on terms to be agreed.

Key property details
Tenure
Leasehold £48,500 Per Annum Exclusive
Size
996 Sq Ft 92.5 Sq M
Type
Retail
Carter Jonas reference
20018339
Property agent
Callum Middleton

Suggested properties

Here are a few properties you might like, but within 2 extra miles of your current search

310 Sq Ft (28.8 Sq M)
Leasehold
1,226 to 1,391 Sq Ft (113.9 to 129.2 Sq M)
Leasehold
2,300 to 15,712 Sq Ft (213.7 to 1,459.7 Sq M)
Leasehold
Thinking of selling?

Find out what your property is worth