Development Site At Foldhill Lane, Martock TA12

Development Site At Foldhill Lane, Martock TA12

Freehold | 0.86 acres (0.348 hectares)

A well-located residential development site for five dwellings.

The Residential Development Site at Foldhill Lane comprises a range of farm buildings with planning permission for replacement with five no. dwellings. The site is situated in an accessible rural location with adjoining farmland but with easy access to the nearby village of Martock and the A303.

In all extending to 0.86 of an acre.

Location
The site is located along Foldhill Lane, in a rural yet accessible location between the villages of Ash, and Martock.

The large village of Martock, which is about one mile from the site offers a good range of day-to-day facilities including a selection of public houses, a hotel, post office, small supermarket, bakery, and butchers. In addition, there is a doctor’s surgery, a dentist, and pharmacy, together with a veterinary surgery.

There are primary schools in Martock and Ash, and secondary schools in Stoke-sub-Hamdon (Stanchester Academy) and Huish Episcopi, Langport (Huish Episcopi Academy), and further education available at Yeovil College.

The site is also within easy reach of several local landmarks including Ham Hill Country Park, a wildlife haven centred around an Iron Age hillfort, offering fantastic opportunities for scenic dog walks, walking, running, and wildlife watching with far reaching views across Somerset.

The A303 is within easy reach of the site and provides access to the nearby town of Yeovil which offers a wider range of shopping, recreational and scholastic facilities, together with a mainline rail link to London Waterloo.

The Property
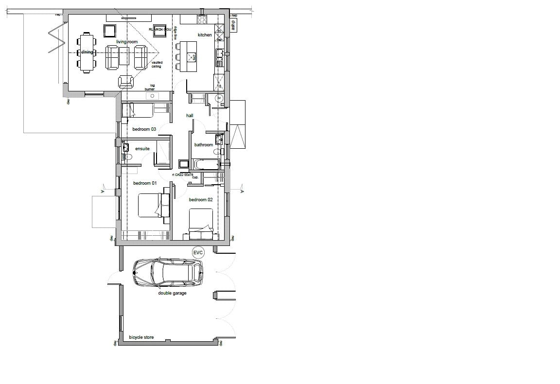
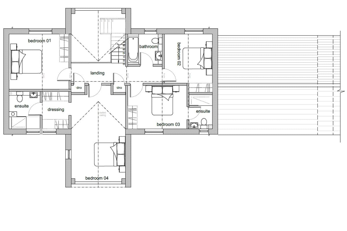
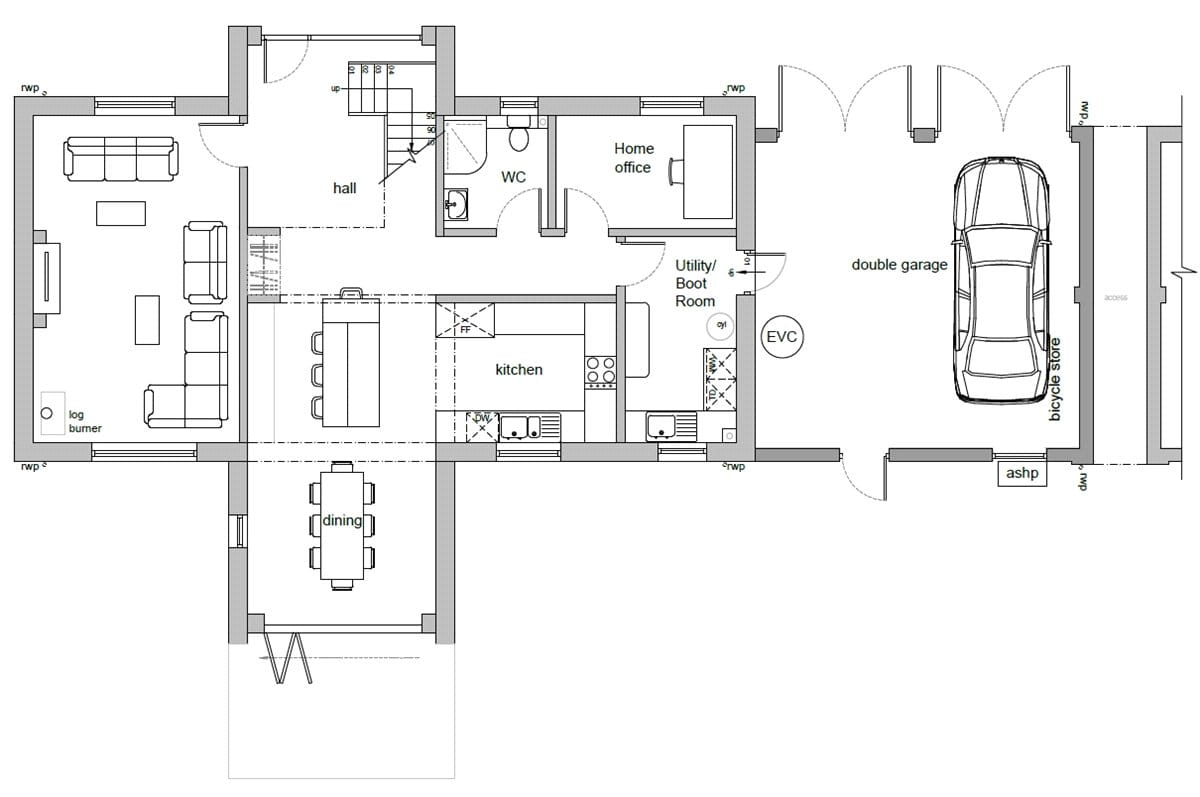
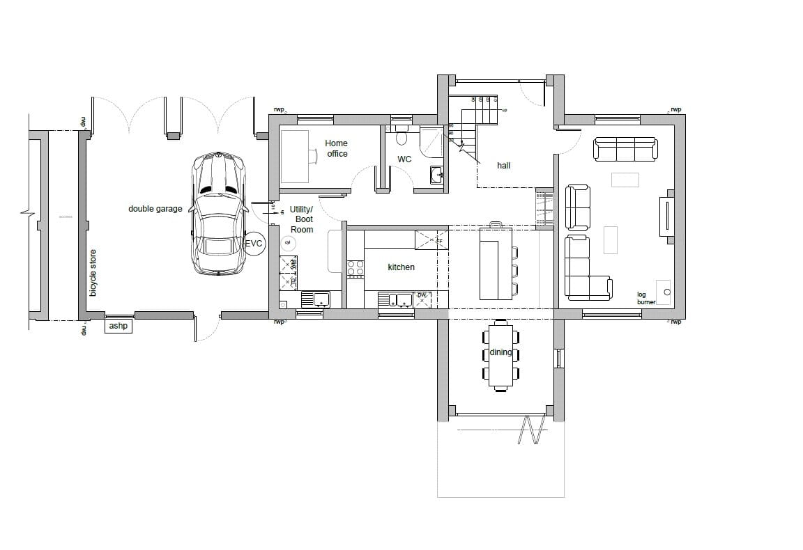
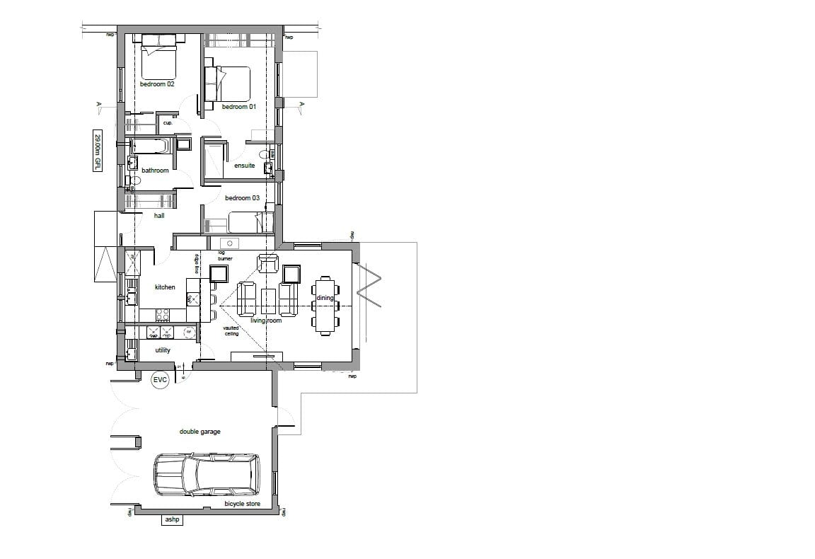
Permission has been granted for the demolition and replacement of the farm buildings with five no. dwellings comprising the following:

Unit 1 – a detached three-bedroom bungalow with adjoining double garage with a GIA of 124sqm.

Unit 2 – a detached four-bedroom two-storey dwelling with adjoining double garage with a GIA of 181sqm.

Unit 3 – a link-detached four-bedroom two-storey dwelling with adjoining double garage with a GIA of 193sqm.

Unit 4 – a link-detached four-bedroom two-storey dwelling with adjoining double garage with a GIA of 193sqm.

Unit 5 – a detached three-bedroom bungalow with adjoining double garage with a GIA of 124sqm.

The Community Infrastructure Levy (CIL) has been calculated as zero, and there is no phosphate mitigation requirement. The Vendors have already completed the Biodiversity Net Gain (BNG) requirements in respect of the proposed development off-site.

The vendors will retain ownership of the access and the areas required for the agricultural access tracks. The required access rights will be granted, including over the track to the west of the site to maintain the proposed package treatment plant. The site area offered for sale totals 0.86 of an acre.

Method of Sale
The property is offered for sale by private treaty with a guide price of £575,000.

Tenure & Possession
The freehold of the site is offered for sale with vacant possession available upon completion. The site will be sold with full access rights over the road access from Foldhill Lane.

Planning
Planning permission was granted in February 2026 under application reference 24/02222/FUL by Somerset Council (South Somerset District Council) for the demolition of farm buildings, erection of five dwellings and construction of farm tracks.

Services
Mains water is available in Foldhill Lane. Mains electricity is available nearby. A package treatment plant will need to be installed to service the site. The purchaser will be granted the relevant rights as may be required for service connections to the site.

Health & Safety
Potential purchasers are required to take particular care when inspecting the property, recommended to wear supportive footwear for viewings and are advised to be conscious of potentially uneven and slippery ground surfaces in and around the farm buildings, as well as farm machinery which may be operating at the time of inspection.

Local Authority
Somerset Council (formerly South Somerset District Council)
www.somerset.gov.uk

Viewings
Viewings are by appointment with Carter Jonas on 01823 428590.

Directions
Following the A303 heading east, shortly after Cartgate Roundabout, take the next turning on the left, signed to Tintinhull, Ash, and Episcopi. Then take the first left signed to Martock. After about a mile, the site will be found on the left-hand side adjoining Foldhill Lane.

What Three Words
/// reputable.sped.sparrows

Key property details
Tenure
Freehold
Size of land
0.86 acres (0.348 hectares)
Carter Jonas reference
TAU260022

Suggested properties

Here are a few properties you might like, but within 2 extra miles of your current search

Guide price £1,750,000 6.4 acres (2.6 hectares)
Development Land
Guide price £850,000 1.9 acres (0.753 hectares)
Development Land
Guide price £600,000 0.93 acres (0.376 hectares)
Development Land
Thinking of selling?

Find out what your property is worth