Woodstock Road, Oxford, OX2
Description
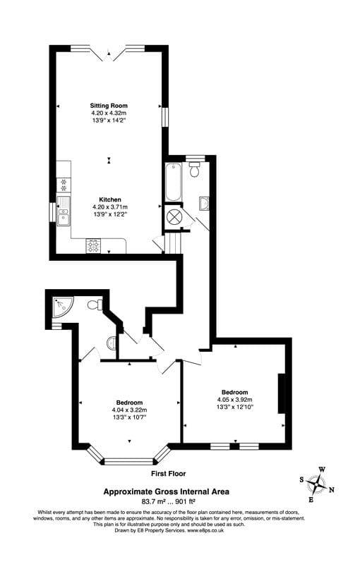
DESCRIPTION A spacious first floor two bedroom apartment with entrance hall, open plan living/dining room/kitchen. The main bedroom has an ensuite shower room and there is a further double bedroom with the main bathroom. The apartment has access to a communal garden which is shared with one other apartment and an allocated off road parking space. LOCATION Situated on the iconic Woodstock Road, the property is ideally located for Oxford city centre and various university departments and colleges which are just a short walk or cycle away. Nearby Summertown and Jericho offer excellent local amenities including cafés, restaurants, and independent shops. Transport links are also excellent with easy access to Oxford Parkway and Oxford mainline stations, as well as the A34 and M40. FURTHER INFORMATION Tenure: Share of freehold - 999 year lease Mains gas, electricity and water are connected to the property. Internet & Mobile: availability and speeds can be found at checker.ofcom.org.uk Council tax Band E EPC C
Features at a glance
- Spacious open plan kitchen/living area
- Two double bedrooms and two bathrooms
- Private off streeting parking and access to a communal garden (shared with one other)
- Excellent amenities in nearby Summertown and Jericho.
Leasehold
Location
Key property details
- Property Style
- Upper floor without lift
- Accessibility
- Ask agent
- Parking
- Yes
- Garden
- Yes
- Lease expiry
- 30 July 3024
- Carter Jonas reference
- OXF250209
Description
DESCRIPTION A spacious first floor two bedroom apartment with entrance hall, open plan living/dining room/kitchen. The main bedroom has an ensuite shower room and there is a further double bedroom with the main bathroom. The apartment has access to a communal garden which is shared with one other apartment and an allocated off road parking space. LOCATION Situated on the iconic Woodstock Road, the property is ideally located for Oxford city centre and various university departments and colleges which are just a short walk or cycle away. Nearby Summertown and Jericho offer excellent local amenities including cafés, restaurants, and independent shops. Transport links are also excellent with easy access to Oxford Parkway and Oxford mainline stations, as well as the A34 and M40. FURTHER INFORMATION Tenure: Share of freehold - 999 year lease Mains gas, electricity and water are connected to the property. Internet & Mobile: availability and speeds can be found at checker.ofcom.org.uk Council tax Band E EPC C
Features at a glance
- Spacious open plan kitchen/living area
- Two double bedrooms and two bathrooms
- Private off streeting parking and access to a communal garden (shared with one other)
- Excellent amenities in nearby Summertown and Jericho.
Leasehold
Location
Key property details
- Property Style
- Upper floor without lift
- Accessibility
- Ask agent
- Parking
- Yes
- Garden
- Yes
- Lease expiry
- 30 July 3024
- Carter Jonas reference
- OXF250209
