Gammaton, Bideford EX39

Gammaton, Bideford EX39

Freehold | Secondary Accomodation | Holiday Complex

Guide price £1,100,000
Bideford Quay (Stop D) 2.6 miles
Old Railway Station 3 miles
Old Railway Station 3.1 miles

Established holiday letting cottage and guest accommodation business in a rural setting, yet only 6 miles from the coastline. The property is currently divided to provide owner’s accommodation and a Bed & Breakfast wing. In addition, a detached 2-bedroom cottage.

Established holiday letting cottage and guest accommodation business in a rural setting, yet only 6 miles from the coastline and 3 miles from the harbour town of Bideford.

Refurbished, detached bungalow with panoramic views over the surrounding countryside providing 4/5 bedrooms, 4 bathrooms and an additional cloakroom.

Currently the property is divided to provide a 1/2-bedroom owner’s accommodation, a Bed & Breakfast wing of 3 en-suite bedrooms including one laid out as a cottage/apartment which could be let out separately with its own entrance.

In addition, a detached 2-bedroom cottage set within the grounds. Currently let in conjunction with the business as a self-catering holiday letting cottage, but enjoys full residential permission. The whole site could be used for multi-generational living.

Set in 1 acre of gardens and grounds with the rear paddock having potential to be developed into camping or a glamping business, subject to gaining the relevant planning consents.

For sale as a whole by private treaty.


Location
Moorview House and The Smithy are located in a rural setting in the North Devon countryside, enjoying countryside views and situated just 6 miles from the coast.

The property has easy access onto the A39 known as the Atlantic Highway that gives access into North Devon and further afield into North Cornwall to the seaside resorts of Bude, Widemouth Bay and Padstow. Only 3 miles from the harbour town of Bideford providing supermarkets, shopping, restaurants, public houses, primary and secondary schooling and access onto the Tarka Trail which is a popular walking/cycling route from Braunton and Meeth. Barnstaple, 12 miles away, is accessed via the A39 which leads to the A361 (North Devon link road) which is mainly dual carriageway to the M5 motorway at junction 27. Barnstaple is the commercial centre of North Devon and offers a range of amenities including shopping, supermarkets, restaurants, public houses, a sports centre, theatre, cinema, Pannier market and district
hospital.

The picturesque villages of Clovelly, Instow, Appledore and Hartland Point with its lighthouse and rugged coastline (which is used for filming) make popular day trips. The Big Sheep and the Milky Way Adventure Parks are located just off the A39 and are popular with guests.

There are sporting facilities in the area including golf at Torrington and Westwood Ho! (the oldest golf course in England). The North Devon coastline is renowned for its excellent surfing beaches such as Woolacombe, Saunton Sands and Croyde which are easily accessible. The National Trust properties of Arlington Court and Knightshayes Court make ideal day trips.


Moorview House
A recently refurbished former farmhouse, upgraded in 2021 with a new roof, plumbing, and heating system. The property provides 4/5 bedrooms and 4 bathrooms, set in a rural location with scenic countryside views. Laid out as two wings, one providing owners accommodation and the other as a guest accommodation wing.

The owner’s accommodation provides an entrance hall with WC facility, sitting room with wood burner and picture window with panoramic views over the North Devon countryside. Sliding doors open into a studio/study which is currently used as a bedroom but could be used as a dining area.

The kitchen is at the rear of the property and is in need of refurbishment, the current owners planned to extend the property into the rear garden and refurbish this section of the property. (Plans are available for the kitchen extension to include bi-fold doors opening out onto the garden and to extend the rear bedroom with a wet room). Utility room, boot room and a rear entrance. From the kitchen, there are steps that lead down into a refurbished dining room area. At the rear of the property is a bedroom with an en-suite shower room with its own entrance which could be let separately or occupied by a dependent relative.


Guest Accommodation
The B&B business provides three letting bedrooms, each with their own entrances. The rooms have been totally refurbished to provide contemporary accommodation, all with en-suite facilities.

Room 3 is the largest providing a sitting room, dining room and kitchen area and bedroom with en-suite bathroom. It has its own access via French doors and could be let separately as a self-contained cottage/apartment.

Room 1 provides a king size bed and ensuite of roll top bath with shower over.

Room 2 provides a king size bed and ensuite wet room with shower.

The three guest accommodation rooms are promoted via their website, www.moorviewhouse.com along with booking.com, visitdevon, devontophotels.com and Trip Advisor, coupled with social media on Facebook. Rated by Trip Advisor as 4.8/5 by its reviews.

There is potential to increase the B&B business turnover. Currently, the business operates with a minimum stay policy of 2 to 3 days during the summer months, is adults-only, and offers continental breakfast only, with no cooked options available. The guest accommodation was closed from November to March last year due to illness.


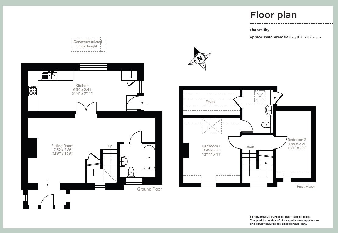
The Smithy
A refurbished 2-bedroom detached residential cottage set within the grounds that is currently let out as a self-catering cottage via holidaycottages.co.uk and caninecottages.co.uk.

The accommodation on the ground floor provides a sitting room with wood burning stove, stairs to first floor, an office area in an alcove, bathroom and kitchen with a door leading out to a rear patio. At first floor, a landing and two bedrooms (bedroom 1 with en-suite WC). Outside of the cottage is a patio area, enclosed rear garden and adjoining parking. (Sleeps 4).


Method of Sale
The property is offered by sale by private treaty inclusive of trade inventory to include furnishings, equipment, fixtures and fittings in relation to the business, excluding any personal items.

Tenure & Possession
The freehold interest is offered for sale with vacant possession available on completion.

Services
The properties are separately connected to mains electricity, mains water, a private drainage system and LPG central heating (a new system was installed in 2021).

EPC Ratings
Moorview House – Rated E.
The Smithy – Rated E.

Council Tax
Moorview House – Band E

Rateable Value
According to the Valuation Office website, the premises has a rateable value of £2,950 (23 August 2023 to present). Interested parties are advised to make their own enquiries.

Local Authority
Torridge District Council
www.torridge.gov.uk

Viewings
Strictly by appointment with agents Carter Jonas, 01823 428590.

What2Words
/// self.upward.slimming

The next steps...

Before making an offer on a property you will want to consider your financial situation, your income and outgoings.

Will you finance the purchase of your next property from the sale of an existing property which can put you in a chain, arrange a mortgage through your bank or buy the property outright.

To help you finance your next property purchase, we have a long established relationship with an independent mortgage broker who can discuss your situation with you.

Remember that having a 'mortgage decision in principle' can make you a more attractive buyer when you make an offer on a property. Contact our mortgage advisers for free, no obligation and impartial advice.

Some advantages of a broker are:

  • They do all the legwork for you, working on your behalf with the lender
  • They compare wholesale mortgage rates from a large number of banks and lenders all at once
  • Their wholesale interest rates can be lower than retail (bank branch) interest rates
  • They offer more loan options because they work with numerous banks and lenders
  • They can finance tricky deals because of their knowledge and various lending partners
  • They are typically easier to get in contact with, and are less bureaucratic.

However advantages of working with your bank are:

  • You may be able to build off an existing relationship (and gain discounts if you have a checking or savings account)
  • You may already know the banker who will handle your mortgage
  • Banks may be more accountable than a smaller shop
  • They may offer lower interest rates in some cases
  • Their ability to add mortgage to existing banking profile and make automatic payments from linked account.

When you see a property you are interested in on our website, call us 24/7 to arrange a viewing. Or if you prefer, get in touch via our website and we will call you back to find a time to view the property that suits you.

Once you’ve found a property you want to buy, it’s time to make an offer. A bit of negotiation is to be expected, however don't offer so little that you end up in a lengthy negotiation process, as you might lose the property altogether if someone else makes a higher bid.

If other offers have been made on a property we aren't legally able to tell you what they are, but we may indicate if they were close to the asking price.

If you have a property to sell, why not see how we can help you.

Or if you’re considering letting your property, we can take the stress out of managing your rental, and our award winning lettings team offer a service that can be tailored to your needs.

Combined with nearly 170 years of experience and one of the highest customer satisfaction scores in the industry, Carter Jonas is the perfect property partner.

Why not book a free, no obligation valuation of your property and find out how Carter Jonas can help you make your next move.

Key property details
Additional attributes
Secondary Accomodation Holiday Complex
Tenure
Freehold
Total sq ft
3,012 (279.8 Sq M) approx.
Carter Jonas reference
TAU250026

Suggested properties

Here are a few properties you might like, but within 2 extra miles of your current search

Offers in excess of £1,000,000
4 bedroom house
Guide price £1,250,000
4 bedroom house
Offers in excess of £1,500,000
14 bedroom house
Offers in excess of £700,000
8 bedroom
Guide price £1,895,000
4 bedroom house
Thinking of selling?

Find out what your property is worth