Hyde End Lane, Brimpton RG7

Hyde End Lane, Brimpton RG7

3 Bedroom | Freehold | 1 Bath | Outbuildings | Character Property

Guide price £875,000
Midgham 2.2 miles
Thatcham 2.3 miles
Aldermaston 3.8 miles

An equestrian home with 6.5 acres tucked away on the edge of the popular village of Brimpton with a well-maintained stable yard, and excellent out riding and walking directly from the property.

Description:
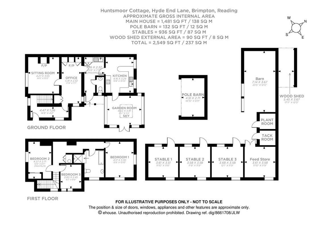
Huntsmoor Cottage was originally built in Victorian times and was extended in the late 80s. There has been the recent addition of an oak framed garden room with a lantern, that benefits from an air-to-air heating pump unit which also provides air-con on those hotter days. It has a large mature garden with several fruit trees. The cottage and garden have been well maintained by the present vendors. As you enter the back door you come into an entrance hall, which is a fitted integrated utility room, providing plenty of storage and space for your boots and coats. Immediately left of the back door is a cloak room. From the utility area you move into a modern fitted integrated kitchen, leading into the beautiful light garden room. The current vendors use this for dining and a day room. The cottage has two reception rooms, one is a useful space currently used as an office, and the other is a cosy sitting room which is fitted with a wood burning stove.

Upstairs there are three bedrooms, two of which have fitted wardrobes and a large bathroom with both bath and separate shower.

Outside:
A shared gravel drive takes you from the lane to the back of the house where there is plenty of parking for cars and a lorry. A separate access from the lane brings you into the paddocks. A well fenced public footpath crosses the property at this point. The yard, which is also at the back of the property, is L shaped it is well maintained with 3 stables, a tack room, barn, a large feed store plus there is an additional pole barn. There is water, lights and electric in the yard. To the rear of the stable block is a paddock currently used as a schooling area/paddock, which has lapsed planning approval for a 20 x 40-meter arena. It is well fenced and surrounded by mature hedging, and mature maple trees offering welcome shade. There is a large open paddock, the perimeter is fenced with stock proof fencing topped with a wooden rail and areas of hedging, the current vendor uses electric fencing for pony management. This field offers many areas of shade, a field shelter with a concrete base is located at the top of the field, together with a tap. Moving across the field there are two additional field shelters with rubber flooring, and for flexibility there are taps in two areas. At the end of the field a gate takes you into a large paddock at the bottom of the property, which is large well fenced and offers lots of areas of shade.
A bridleway runs from the field gate. The Wasing Estate’s, Mount Charity provides a permitted bridleway scheme which provides riding around their estate. Greenham and Crookham Common is close by and offers 444 hectares with pathways across open heathland available to both dog walkers and horse rider. There is two local riding clubs which run competitions in most disciplines, plus local Equestrian Centres provide training, events, fun rides, competitions and indoor and outdoor arena hire. A Site Plan is available on request from the agent.

Tenure: Freehold

Services: Mains water, electric, private drainage, LPG central heating, a complete solar energy system, Gigaclear Superfast Rural Broadband.

Local Authority: West Berkshire Council

Council Tax: Band F

The next steps...

Before making an offer on a property you will want to consider your financial situation, your income and outgoings.

Will you finance the purchase of your next property from the sale of an existing property which can put you in a chain, arrange a mortgage through your bank or buy the property outright.

To help you finance your next property purchase, we have a long established relationship with an independent mortgage broker who can discuss your situation with you.

Remember that having a 'mortgage decision in principle' can make you a more attractive buyer when you make an offer on a property. Contact our mortgage advisers for free, no obligation and impartial advice.

Some advantages of a broker are:

  • They do all the legwork for you, working on your behalf with the lender
  • They compare wholesale mortgage rates from a large number of banks and lenders all at once
  • Their wholesale interest rates can be lower than retail (bank branch) interest rates
  • They offer more loan options because they work with numerous banks and lenders
  • They can finance tricky deals because of their knowledge and various lending partners
  • They are typically easier to get in contact with, and are less bureaucratic.

However advantages of working with your bank are:

  • You may be able to build off an existing relationship (and gain discounts if you have a checking or savings account)
  • You may already know the banker who will handle your mortgage
  • Banks may be more accountable than a smaller shop
  • They may offer lower interest rates in some cases
  • Their ability to add mortgage to existing banking profile and make automatic payments from linked account.

When you see a property you are interested in on our website, call us 24/7 to arrange a viewing. Or if you prefer, get in touch via our website and we will call you back to find a time to view the property that suits you.

Once you’ve found a property you want to buy, it’s time to make an offer. A bit of negotiation is to be expected, however don't offer so little that you end up in a lengthy negotiation process, as you might lose the property altogether if someone else makes a higher bid.

If other offers have been made on a property we aren't legally able to tell you what they are, but we may indicate if they were close to the asking price.

If you have a property to sell, why not see how we can help you.

Or if you’re considering letting your property, we can take the stress out of managing your rental, and our award winning lettings team offer a service that can be tailored to your needs.

Combined with nearly 170 years of experience and one of the highest customer satisfaction scores in the industry, Carter Jonas is the perfect property partner.

Why not book a free, no obligation valuation of your property and find out how Carter Jonas can help you make your next move.

Key property details
Property attributes
Semi Detached
Era
Period
Parking available
Off Street Parking
Additional attributes
Outbuildings Character Property Garden Land/Paddock
Locality
Rural
Tenure
Freehold
Energy efficiency rating
D
Total sq ft
1,481 (137.6 Sq M) approx.
Carter Jonas reference
NEW250295

Suggested properties

Here are a few properties you might like, but within 2 extra miles of your current search

Guide price £925,000
3 bedroom house
Guide price £800,000
4 bedroom bungalow
Guide price £825,000
4 bedroom house
Guide price £950,000
4 bedroom house
Thinking of selling?

Find out what your property is worth