Grain Walk, Cambridge CB1

Grain Walk, Cambridge CB1

4 Bedroom | Freehold | 3 Baths

Guide price £674,995
Cambridge 1.9 miles
Cambridge North 2.1 miles
Shelford 3.8 miles

A brand-new, versatile four-bedroom family home situated in a vibrant community, offering four double bedrooms, three bathrooms, and a dedicated study.

Introducing this versatile 4 bedroom end-of-terrace home offering accommodation across three floors. Built by award winning developer, the home is finished to an excellent standard, including Air Source Heat Pump, EV Charging point, underfloor heating to the ground floor, and a stylish, contemporary kitchen fitted with integrated appliances.

Upon entry, you're welcomed by a spacious entrance hall with understairs storage and a cloakroom. The open-plan kitchen/dining/living area offers a warm and inviting space for the family, with French doors leading to the garden, perfect for indoor-outdoor living.

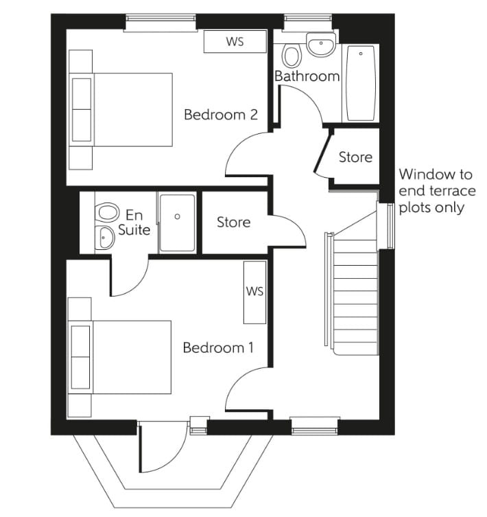
On the first floor, there are two double bedrooms. The principal bedroom benefits from an en-suite bathroom and a private balcony overlooking green space. The second bedroom is served by the stylish family bathroom. Two useful storage cupboards complete this floor.

The second floor offers two further double bedrooms, with the larger room enjoying its own en-suite. A dedicated study provides an ideal workspace for those working from home.

Outside there is a driveway for two cars, a bicycle store, and an EV charger, with direct gated access into the rear garden.

Springstead Village is an exciting new development set to transform the local area with a vibrant and well-connected community. Designed for modern living, it will offer a diverse range of amenities, creating a lifestyle of convenience and comfort. With its thoughtful planning and appealing location, Springstead Village is becoming a prime destination for families, professionals, and investors alike.

Cherry Hinton is a popular residential area situated on the outskirts of the city. It offers excellent local amenities, including a variety of shops, cafes, and a public house, as well as doctors' and dentists' surgeries and schools. Cherry Hinton is also home to a Tesco superstore and Sainsbury's, while providing regular bus services into the city and station, as well as the open, recreational spaces of Cherry Hinton Hall. The village is superbly located for access to major road links including the A11, A14, and M11, as well as the Science/Business Parks in the area and Addenbrooke’s Hospital.

Predicted Energy Assessment available upon request.

Disclaimer – The images shown are for illustrative purposes only, are not plot specific and may vary from finishes within individual properties. The information given is without responsibility on the part of the agent (sellers) and you should not rely on the information being factually accurate about the property. Neither Carter Jonas LLP nor anyone in its employment or acting on its behalf have the authority to make any representation or warranty in relation to this property. The areas, measurements and distances are approximate only.

The next steps...

Before making an offer on a property you will want to consider your financial situation, your income and outgoings.

Will you finance the purchase of your next property from the sale of an existing property which can put you in a chain, arrange a mortgage through your bank or buy the property outright.

To help you finance your next property purchase, we have a long established relationship with an independent mortgage broker who can discuss your situation with you.

Remember that having a 'mortgage decision in principle' can make you a more attractive buyer when you make an offer on a property. Contact our mortgage advisers for free, no obligation and impartial advice.

Some advantages of a broker are:

  • They do all the legwork for you, working on your behalf with the lender
  • They compare wholesale mortgage rates from a large number of banks and lenders all at once
  • Their wholesale interest rates can be lower than retail (bank branch) interest rates
  • They offer more loan options because they work with numerous banks and lenders
  • They can finance tricky deals because of their knowledge and various lending partners
  • They are typically easier to get in contact with, and are less bureaucratic.

However advantages of working with your bank are:

  • You may be able to build off an existing relationship (and gain discounts if you have a checking or savings account)
  • You may already know the banker who will handle your mortgage
  • Banks may be more accountable than a smaller shop
  • They may offer lower interest rates in some cases
  • Their ability to add mortgage to existing banking profile and make automatic payments from linked account.

When you see a property you are interested in on our website, call us 24/7 to arrange a viewing. Or if you prefer, get in touch via our website and we will call you back to find a time to view the property that suits you.

Once you’ve found a property you want to buy, it’s time to make an offer. A bit of negotiation is to be expected, however don't offer so little that you end up in a lengthy negotiation process, as you might lose the property altogether if someone else makes a higher bid.

If other offers have been made on a property we aren't legally able to tell you what they are, but we may indicate if they were close to the asking price.

If you have a property to sell, why not see how we can help you.

Or if you’re considering letting your property, we can take the stress out of managing your rental, and our award winning lettings team offer a service that can be tailored to your needs.

Combined with nearly 170 years of experience and one of the highest customer satisfaction scores in the industry, Carter Jonas is the perfect property partner.

Why not book a free, no obligation valuation of your property and find out how Carter Jonas can help you make your next move.

Key property details
Property attributes
End of Terrace
Parking available
Off Street Parking
Additional attributes
Garden
Locality
Town/City
Tenure
Freehold
Service charge
£276 per annum
Total sq ft
1,477 (137.2 Sq M) approx.
Carter Jonas reference
CNH250154

Suggested properties

Here are a few properties you might like, but within 2 extra miles of your current search

Guide price £725,000
4 bedroom house
Guide price £699,995
4 bedroom house
Guide price £699,995
4 bedroom house
Thinking of selling?

Find out what your property is worth