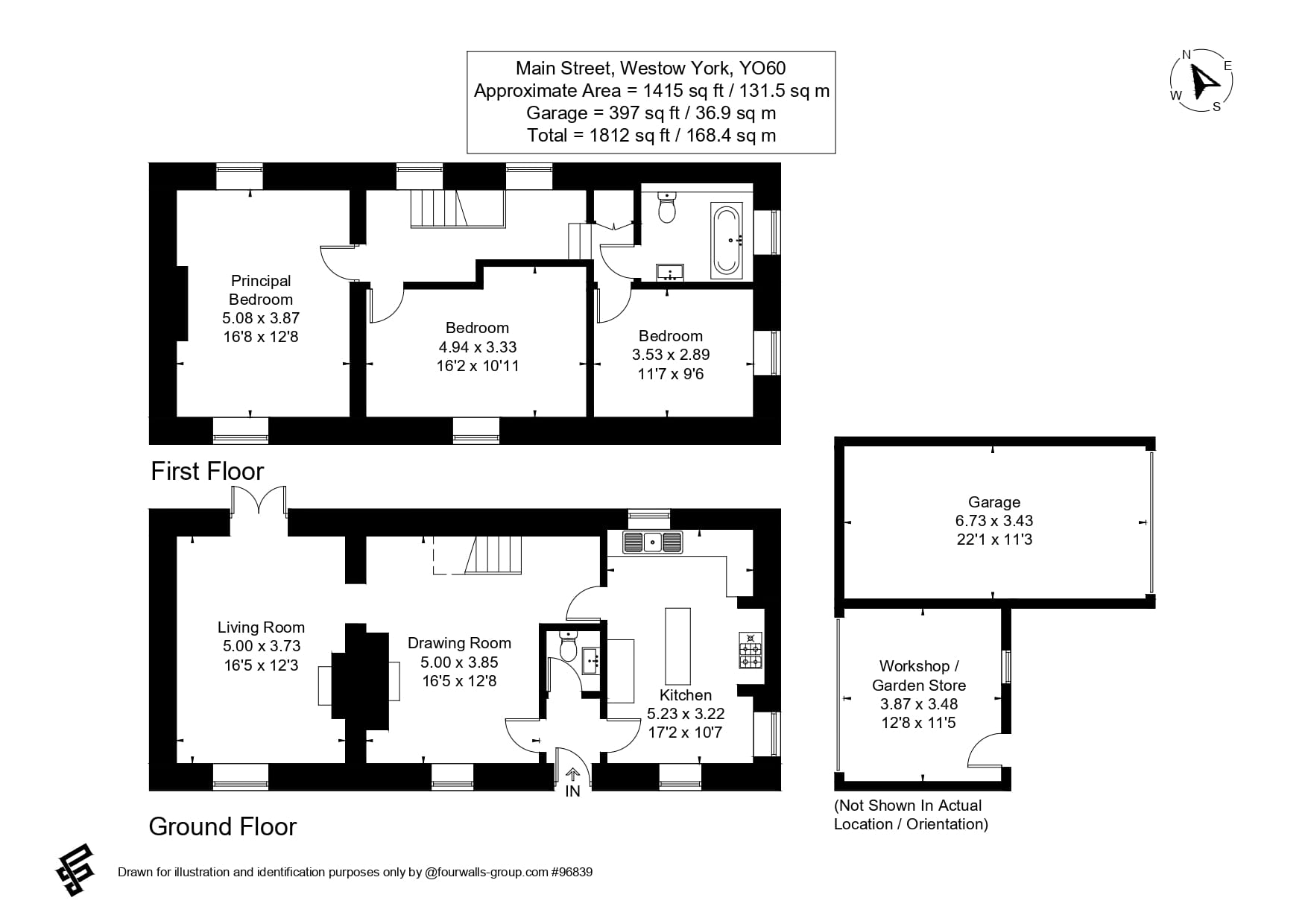
Main Street, Westow YO60

Main Street, Westow YO60

3 Bedroom | Freehold | 1 Bath

Asking price £595,000
Malton 4.3 miles
Malton Rail Station 4.3 miles
Bus Station Stand 3 4.4 miles

A period three bedroom cottage with a wealth of exposed timbers and character which has undergone a programme of restoration. Located in an unspoilt village between the market town of Malton and York.

Yew Tree Cottage is a beautifully restored Grade II listed home dating back to 1750, set in the heart of the sought-after village of Westow, on the edge of the Howardian Hills Area of Outstanding Natural Beauty. Combining more than 270 years of history with design-led interiors and modern comforts, it offers a rare opportunity to acquire a property that is both steeped in character and ready for contemporary living.

The accommodation is full of charm, with exposed oak beams, deep-set windows and traditional fireplaces. The main reception room opens directly to the garden and is centred around a wood-burning stove, creating a warm and inviting living space. A second reception room with open fire provides further versatility for dining or entertaining, while the farmhouse kitchen blends practicality with heritage style. Upstairs, three restful bedrooms and a family bathroom with shower over bath complete the accommodation.

Outside, the cottage opens onto a private south-facing walled garden with stone terraces, lawn and mature planting. At its heart sits the village’s original well — a unique historic feature. Beyond the garden lies a large stone outbuilding incorporating a spacious garage with attic above and a generous room currently used for storage, offering rare versatility. Heating is supplied by LPG with a concealed underground tank.

Yew Tree Cottage has also operated as a boutique holiday let with excellent feedback, offering buyers the flexibility to continue this use or enjoy it as a private residence close to Malton, Castle Howard, York, the North York Moors and the Yorkshire coast.

Key details: Built in 1750 | Grade II Listed | Freehold | EPC Band F

The next steps...

Before making an offer on a property you will want to consider your financial situation, your income and outgoings.

Will you finance the purchase of your next property from the sale of an existing property which can put you in a chain, arrange a mortgage through your bank or buy the property outright.

To help you finance your next property purchase, we have a long established relationship with an independent mortgage broker who can discuss your situation with you.

Remember that having a 'mortgage decision in principle' can make you a more attractive buyer when you make an offer on a property. Contact our mortgage advisers for free, no obligation and impartial advice.

Some advantages of a broker are:

  • They do all the legwork for you, working on your behalf with the lender
  • They compare wholesale mortgage rates from a large number of banks and lenders all at once
  • Their wholesale interest rates can be lower than retail (bank branch) interest rates
  • They offer more loan options because they work with numerous banks and lenders
  • They can finance tricky deals because of their knowledge and various lending partners
  • They are typically easier to get in contact with, and are less bureaucratic.

However advantages of working with your bank are:

  • You may be able to build off an existing relationship (and gain discounts if you have a checking or savings account)
  • You may already know the banker who will handle your mortgage
  • Banks may be more accountable than a smaller shop
  • They may offer lower interest rates in some cases
  • Their ability to add mortgage to existing banking profile and make automatic payments from linked account.

When you see a property you are interested in on our website, call us 24/7 to arrange a viewing. Or if you prefer, get in touch via our website and we will call you back to find a time to view the property that suits you.

Once you’ve found a property you want to buy, it’s time to make an offer. A bit of negotiation is to be expected, however don't offer so little that you end up in a lengthy negotiation process, as you might lose the property altogether if someone else makes a higher bid.

If other offers have been made on a property we aren't legally able to tell you what they are, but we may indicate if they were close to the asking price.

If you have a property to sell, why not see how we can help you.

Or if you’re considering letting your property, we can take the stress out of managing your rental, and our award winning lettings team offer a service that can be tailored to your needs.

Combined with nearly 170 years of experience and one of the highest customer satisfaction scores in the industry, Carter Jonas is the perfect property partner.

Why not book a free, no obligation valuation of your property and find out how Carter Jonas can help you make your next move.

Key property details
Property attributes
Semi Detached
Era
Period
Parking available
Garage
Additional attributes
Garden
Locality
Village
Tenure
Freehold
Energy efficiency rating
F
Carter Jonas reference
YOR080404

Suggested properties

Here are a few properties you might like, but within 2 extra miles of your current search

Guide price £995,000
4 bedroom house
Asking price £700,000
4 bedroom house
Asking price £675,000
5 bedroom house
Guide price £950,000
5 bedroom house
Asking price £1,600,000
6 bedroom house
Guide price £725,000
4 bedroom house
Guide price £499,999
development plot
Asking price £650,000
3 bedroom house
Asking price £975,000
4 bedroom
Asking price £425,000
2 bedroom flat
Guide price £1,625,000
5 bedroom house
Asking price £2,100,000
5 bedroom house
Thinking of selling?

Find out what your property is worth