Wyton, Huntingdon PE28

Wyton, Huntingdon PE28

Holiday Complex

Asking price £1,300,000
Huntingdon 2.8 miles
St Ives Road 0.4 miles
St Ives Road 0.5 miles

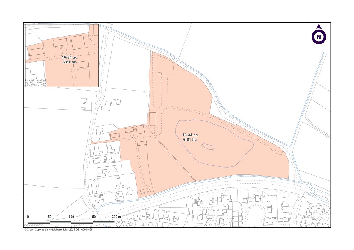
Residential development and leisure business opportunity. Situated between Huntingdon and St Ives, the Property comprises a range of holiday accommodation units in addition to multiple barn conversion opportunities. In all extending to 16.34 acres.

Location

Situated on the northern edge of the tranquil village of Wyton, the Property enjoys a peaceful semi-rural location. Wyton is situated centrally between the vibrant market towns of Huntingdon and St Ives. The nearby Houghton Mill, a National Trust site, adds to the area’s character and appeal. The River Great Ouse is also a key local attraction. There is a Blue Diamond Garden Centre situated only a short walking distance away from the Property.

The Property is well-connected:

• 2.5 miles from Huntingdon, offering a wide range of shops, schools and amenities
• Excellent transport links via the A141 and A14, with direct rail services to London from Huntingdon station
• Easy access to Cambridge (approx. 20 miles) and 15-minute walk to a guided busway stop (operating from Huntingdon-St. Ives-Cambridge).

The area is also well-served by local schools, leisure facilities and riverside pubs, making it an ideal location for families, retirees, tourists or those looking to establish a home-based business in a serene yet strategic setting.


Property

The land and buildings off Splash Lane are situated on former farmland held in family ownership and used for a variety of purposes over the past 40 years, which today is focused on the successful on-site leisure business.

There remains a significant amount of potential for expansion of the holiday accommodation, initially by completing the conversion of Holiday Units 1 & 2.

The Lake Barn benefits from planning consent for conversion into four unrestricted residential units.

Walnut Barn and the garaging could also be suitable for residential or leisure use (STPP).

The site extends to 16.34 acres, with the land element including a large lake, paddocks, a range of mature trees and stables.


Holiday Cottages

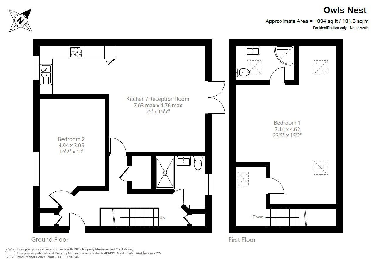
Woodpecker Lodge and Owls Nest:
Woodpecker Lodge was converted in 2020, followed by Owls Nest in 2021. The internal layout is almost a mirror image. The ground floor comprises a family shower room, kitchen/diner/lounge, second bedroom and storage, with the first-floor including a bedroom with en-suite shower room. Adjacent to Woodpecker Lodge and Owls Nest is a substantial laundry room which serves the whole site. The combined floor area of these units totals 2,548 sq ft. The two holiday units have been marketed on a rental basis online and the vendors have opted to let for minimum 1-week periods. The rental fees range from a minimum of £595 to £1,255 per week. Guests have often stayed on a regular basis and there have been some extended holiday lets. The vendors have recently upgraded the French doors and front doors to UPVC and the condition is particularly good throughout. The heating is modern electric (Haverland Smartwave) which is highly efficient.

Unconverted Holiday Units 1 & 2:
Whilst the external construction of these units is complete with a weather-proof outer shell and some services connections installed, full internal conversion and fit-out to provide a suitable space for holiday use is still required. These two units span across 2,420 sq ft.


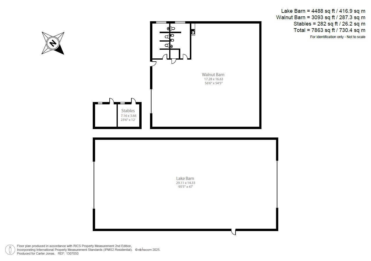
Lake Barn

This was constructed in 2009 and extends to 4,488 sq ft. Lake Barn was initially used as a grain store and benefits from planning consent for conversion to four unrestricted residential units.


Walnut Barn

American-barn style building, Walnut Barn provides 3,093 sq ft of storage space. Primarily an open-plan unit, there are also extensive toilet facilities.


Garaging

Extending to 1,491 sq ft, the garaging offers potential for conversion to either leisure or residential use (STPP). Additional garden land adjacent to the garage may be available by separate negotiation.


Land & Lake

Extending to 16.34 acres, the land and lake offer extensive potential for change of use. The land could accommodate a change of use to equestrian, leisure or residential development (STPP). A pair of stables and a large area of hardstanding provide storage space. Totalling 3 acres, with a central island, the lake has become a superb habitat for bird life. The lake could provide a further source of income if operated as a fishery.


Method of Sale

For sale by private treaty as a whole.


Tenure & Possession

For sale with vacant possession.


Planning

Holiday Lets:
The buildings benefit from planning permission (ref: 1401533FUL) for two pairs of holiday lets..

Lake Barn:
Prior approval (ref: 16/00223/PMBPA) has been secured for conversion to four unrestricted residential units.

Garaging:
The garage block was granted planning permission in 2006 (ref: 06/03141FUL).

Lake:
The lake was granted permission for gravel excavation and removal, which has been carried out (refs: H/02028/08/CM & H/005009/10/CM).

Walnut Barn:
Benefits from outline planning consent for use as a storage building (ref: 93/0003).


Overage

An overage obligation does apply to areas of the site, further details are available on request.


Services

The Property benefits from mains water, electricity and drainage.


Wayleaves, Easements & Rights of Way

The Property is to be sold subject to, and with the benefit of, all existing wayleaves, easements, covenants and rights of way, whether or not disclosed.

A public footpath crosses part of the Property.


EPC Ratings

• Woodpecker Lodge: E (54)
• Owls Nest: E (54)
• Walnut Barn: D (99)
• Lake Barn: D (87)


Access

Access is achieved directly off the adopted highway, Splash Lane.


Local Authority

Huntingdonshire District Council
St Mary’s Street
Huntingdon
PE29 3TN


Health & Safety

All viewings are carried out at the sole risk of the viewer and neither the selling agent nor the vendor take responsibility.


VAT

Any guide prices quoted or discussed are exclusive of VAT. In the event that the sale of the Property becomes a chargeable supply for the purposes of VAT, such tax will be payable (or become payable by the purchaser) in addition to the purchase price.


Sporting, Timber & Mineral Rights

To be included insofar as they are owned.


Viewings

Viewings are to be by appointment only, arranged through the selling agent.


Directions

Travelling from Huntingdon, at the BP roundabout continue eastwards along Huntingdon Road (A1123) for 1.70 km before turning left onto Splash Lane. Continue ahead for 175 metres where the entrance to the Property is on the right-hand-side.


What3Words

///blizzard.blending.goodnight

The next steps...

Before making an offer on a property you will want to consider your financial situation, your income and outgoings.

Will you finance the purchase of your next property from the sale of an existing property which can put you in a chain, arrange a mortgage through your bank or buy the property outright.

To help you finance your next property purchase, we have a long established relationship with an independent mortgage broker who can discuss your situation with you.

Remember that having a 'mortgage decision in principle' can make you a more attractive buyer when you make an offer on a property. Contact our mortgage advisers for free, no obligation and impartial advice.

Some advantages of a broker are:

  • They do all the legwork for you, working on your behalf with the lender
  • They compare wholesale mortgage rates from a large number of banks and lenders all at once
  • Their wholesale interest rates can be lower than retail (bank branch) interest rates
  • They offer more loan options because they work with numerous banks and lenders
  • They can finance tricky deals because of their knowledge and various lending partners
  • They are typically easier to get in contact with, and are less bureaucratic.

However advantages of working with your bank are:

  • You may be able to build off an existing relationship (and gain discounts if you have a checking or savings account)
  • You may already know the banker who will handle your mortgage
  • Banks may be more accountable than a smaller shop
  • They may offer lower interest rates in some cases
  • Their ability to add mortgage to existing banking profile and make automatic payments from linked account.

When you see a property you are interested in on our website, call us 24/7 to arrange a viewing. Or if you prefer, get in touch via our website and we will call you back to find a time to view the property that suits you.

Once you’ve found a property you want to buy, it’s time to make an offer. A bit of negotiation is to be expected, however don't offer so little that you end up in a lengthy negotiation process, as you might lose the property altogether if someone else makes a higher bid.

If other offers have been made on a property we aren't legally able to tell you what they are, but we may indicate if they were close to the asking price.

If you have a property to sell, why not see how we can help you.

Or if you’re considering letting your property, we can take the stress out of managing your rental, and our award winning lettings team offer a service that can be tailored to your needs.

Combined with nearly 170 years of experience and one of the highest customer satisfaction scores in the industry, Carter Jonas is the perfect property partner.

Why not book a free, no obligation valuation of your property and find out how Carter Jonas can help you make your next move.

Key property details
Additional attributes
Holiday Complex
Property type
House Land Gite Development Plot Holiday Complex
Carter Jonas reference
CBR250005

Suggested properties

Here are a few properties you might like, but within 2 extra miles of your current search

Offers over £1,299,000 7.1 acres (2.9 hectares)
Agricultural
Guide price £625,000 2.5 acres (1 hectares)
Agricultural
Guide price £1,600,000 1.5 acres (0.607 hectares)
Agricultural
Thinking of selling?

Find out what your property is worth