Limbersey Lane, Maulden MK45

Limbersey Lane, Maulden MK45

Guide price £1,175,000
Flitwick 2.4 miles
Millbrook 3.1 miles
Stewartby 3.3 miles

Renovation and redevelopment opportunity (STPP) of farmhouse, buildings and land in Maulden, Bedford.

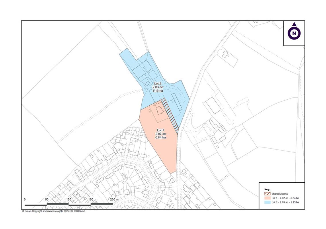
In all extending to 4.9 acres.

For sale by private

Renovation and redevelopment opportunity (STPP) of farmhouse, buildings and land in Maulden, Bedford.

House for redevelopment, farm buildings and yard with development potential (subject to Planning Permission (STPP)).

In all extending to 4.9 acres.

For sale by private treaty as a whole or in up to 2 lots.

Lot 1: Farmhouse and Paddock
Kings Farmhouse was constructed circa 1882 comprising a substantial detached two-storey house with an attractive front porch, solid brick walls under clay rooftiles with stone windowsills. Kings Farmhouse requires extensive renovation which we believe will be subject to achieving planning permission to be restored to habitable condition. There are two timber frame rear garages. With an attractive evergreen Oak in the front garden, Kings Farmhouse is situated in a plot of 2.07 acres and benefits from a paddock in front of the house. The approximate GIA of the farmhouse and garages extends to 3,180 sq ft (295 sq m).

Lot 2: Buildings and Yard
Situated in a plot of 2.83 acres, the agricultural buildings at Kings Farm extend to a GIA of approximately 12,401 sq ft (1,152 sq m), including:

• Barn 1: open-fronted former livestock barn; concrete flooring; steel portal frame; concrete block and one-third Yorkshire boarding walls; cement-fibre roofing

• Between Barns 1 and 2 is a silo and small steel portal frame shed

• Barn 2: former livestock barn; concrete flooring; concrete frame; sheet metal walls; cement-fibre roofing; livestock apparatus still in-situ

• Barn 3: open-fronted former machinery store; concrete flooring; steel portal frame; combination of cement fibre and concrete block walls; cement fibre roofing; exceptional views towards the north
• Located south-east of Barn 3 is a substantial slurry pit

• Barn 4: former storage building; brick walls; combination of slate, cement fibre and tile roofing; rear yard area; this building is understood to be in poor structural condition and there is extensive buddleia growth.

Method of Sale
For Sale by Private Treaty as a whole or in 2 Lots.

• Lot 1: House & Paddock £600,000

• Lot 2: Yard & Buildings £575,000

Tenure & Possession
The freehold of the site is offered for sale with vacant possession.

Planning
Barns 1 and 2 are within the Green Belt and outside of the settlement boundary.
Barns 3 and 4 are outside of the Green Belt and beyond the settlement boundary.
The site is adjacent to an Environment Agency culvert, buyers are encouraged to research flood risk as a site constraint.
Carter Jonas Planning Team have prepared a planning policy note which is available from the agent on a non-reliance basis.

Overage
Lot 1: Is subject to an overage agreement in favour of a previous owner, under which 30% of any increase in value resulting from any form of development is payable for a term that runs until 2056.
Lot 2: The vendors would consider a sale on an unconditional basis with overage based on the number of units a buyer achieved on the site.
Further information on the overage provisions is available from the agent.

Additional Information
A video tour of the house is available on request from the Selling Agents.

Wayleaves Easements & Rights of Way
The Property is to be sold subject to, and with the benefit of, all existing wayleaves, easements, covenants and rights of way, whether or not disclosed. Should Lots 1 and 2 be sold separately, the accessway would be part of Lot 2, with appropriate rights of way provided from Lot 1.

Health & Safety
All viewings are carried out at the sole risk of the viewer and neither the selling Agent nor the Vendor take responsibility.

VAT
Any guide prices quoted or discussed are exclusive of VAT. In the event that the sale of the Property becomes a chargeable supply for the purposes of VAT, such tax will be payable (or become payable by the purchaser) in addition to the purchase price.

Sporting Timber & Mineral Rights
To be included in the sale so for as these are owned within the property.

EPC Ratings
The property has an EPC rating of G.

Local Authorities
Central Bedfordshire Council
Priory House
Monks Walk
Shefford
SG17 5TQ

Viewings
Viewings are to be by appointment only, arranged through the selling Agent.
For Health & Safety purposes viewings are not permitted inside the farmhouse.

Directions
Travelling along the A507 turn onto Flitwick Rd. At the end of this road turn right onto Ampthill Rd then take the first left onto The Brache/Limbersey Ln. The property will be on your left.

What3Words
///oath.tidal.bath

The next steps...

Before making an offer on a property you will want to consider your financial situation, your income and outgoings.

Will you finance the purchase of your next property from the sale of an existing property which can put you in a chain, arrange a mortgage through your bank or buy the property outright.

To help you finance your next property purchase, we have a long established relationship with an independent mortgage broker who can discuss your situation with you.

Remember that having a 'mortgage decision in principle' can make you a more attractive buyer when you make an offer on a property. Contact our mortgage advisers for free, no obligation and impartial advice.

Some advantages of a broker are:

  • They do all the legwork for you, working on your behalf with the lender
  • They compare wholesale mortgage rates from a large number of banks and lenders all at once
  • Their wholesale interest rates can be lower than retail (bank branch) interest rates
  • They offer more loan options because they work with numerous banks and lenders
  • They can finance tricky deals because of their knowledge and various lending partners
  • They are typically easier to get in contact with, and are less bureaucratic.

However advantages of working with your bank are:

  • You may be able to build off an existing relationship (and gain discounts if you have a checking or savings account)
  • You may already know the banker who will handle your mortgage
  • Banks may be more accountable than a smaller shop
  • They may offer lower interest rates in some cases
  • Their ability to add mortgage to existing banking profile and make automatic payments from linked account.

When you see a property you are interested in on our website, call us 24/7 to arrange a viewing. Or if you prefer, get in touch via our website and we will call you back to find a time to view the property that suits you.

Once you’ve found a property you want to buy, it’s time to make an offer. A bit of negotiation is to be expected, however don't offer so little that you end up in a lengthy negotiation process, as you might lose the property altogether if someone else makes a higher bid.

If other offers have been made on a property we aren't legally able to tell you what they are, but we may indicate if they were close to the asking price.

If you have a property to sell, why not see how we can help you.

Or if you’re considering letting your property, we can take the stress out of managing your rental, and our award winning lettings team offer a service that can be tailored to your needs.

Combined with nearly 170 years of experience and one of the highest customer satisfaction scores in the industry, Carter Jonas is the perfect property partner.

Why not book a free, no obligation valuation of your property and find out how Carter Jonas can help you make your next move.

Key property details
Parking available
Off Street Parking
Locality
Rural
Property type
Detached House Land Gite Farm Convenience Store Development Plot Holiday Complex
Carter Jonas reference
CBR260004
Thinking of selling?

Find out what your property is worth