Trewern, Welshpool SY21

Trewern, Welshpool SY21

4 Bedroom | 2 acres (0.809 hectares)

Guide price £1,100,000
Welshpool 4.7 miles
Crossroads 4.1 miles
St Aelhaiarn`s Church 4.6 miles

A unique and beautifully crafted residence nestled within 2 acres of stunning countryside with expansive views.

A rare opportunity to acquire an immaculately presented modern country home, Crofters Barn is nestled in 2 acres of tranquil, picturesque countryside on the Powys/Shropshire border. Crofters Barn offers spacious, flexible living accommodation, modern outbuildings, and equestrian facilities—ideal for families and lifestyle buyers seeking privacy without sacrificing access to local amenities.

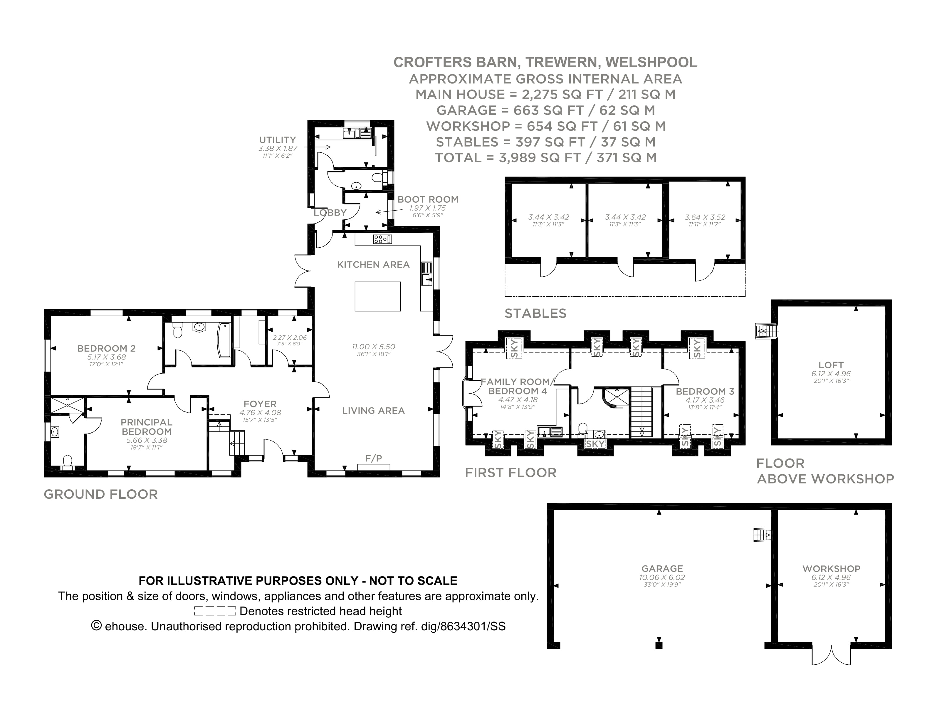
– Spacious 4-Bedroom Home extending to approx. 211 sqm (2,275 sqft)
– Detached Garage, Workshop & Loft: With a combined area. of 121 sqm (1,302 sqft)
– Modern Timber Stables (2024): Three looseboxes with a combined area of 37 sqm (397 sqft)
– 1.5 Acre Paddock with stream frontage
– Environmentally conscious: Ground source heat pump, solar PV, underfloor heating
– Ultra-Fast Broadband
– Secluded yet accessible: 6 miles to Welshpool, 15 miles to Shrewsbury

Location
Crofters Barn is situated in a peaceful and private rural position near the villages of Middletown and Trewern (approx. 1.5 miles), which offer amenities including a primary school, pub and restaurant. The larger market town of Welshpool lies around 6 miles to the west, with a wider array of shops, supermarkets, schools, and services. Excellent road connectivity is provided by the nearby A458, with Shrewsbury 15 miles away and Chester within 45 miles.

Property
Crofters Barn is a fine example of a bespoke modern country property set in idyllic rolling countryside. The Property is immaculately finished resulting in stunning accommodation throughout with attention to detail and an abundance of architectural features.

The House
Foyer
A welcoming and spacious entrance hall featuring a beautiful oak staircase leading to the first floor. The open layout sets the tone for the home’s warmth and craftsmanship, with natural light and oak detailing.

Kitchen & Open Plan Living Room
The heart of the home, this expansive openplan space combines traditional charm with modern convenience.
– The bespoke kitchen boasts handmade oak cabinetry, polished granite worktops, integrated appliances and a range cooker
– A large central island offers additional workspace and an area for casual dining.
– The living area features exposed oak beams and a characterful fireplace.
– A generous space for a family-sized dining table, perfect for entertaining with views over the garden and countryside beyond.
– Two sets of patio doors open onto the front terrace, filling the room with light and offering seamless indoor-outdoor living.

Utility Room
Practical and well-equipped, with a sink & drainer, worktop space, plumbing for laundry appliances, and housing for the heating system.

Cloakroom
Conveniently located off the rear hallway, with a low-level WC and wash basin, finished with neutral tiling and oak woodwork.

Boot Room
A functional space offering abundant storage for outdoor wear, equipment, and coats. Perfect for busy country living.

Lobby
External door access allows for use as a secondary entrance, ideal for muddy boots or dogs.

Home Study
A quiet and private room ideal for remote working or use as a hobby space, with views to the garden terrace.

Store Room
Useful internal storage room, ideal for linens or general household items.

Family Bathroom
Stylishly appointed with a luxurious spa bath, wash basin and WC. Neutral tones, quality fixtures and thoughtful lighting.

Principal Bedroom
A generously proportioned double room with exceptional far-reaching views over the countryside. Includes a private en-suite shower room, wash basin and WC.

Bedroom Two
A spacious double bedroom with two windows framing views of the gardens and surrounding landscape.

Upstairs

Shower Room
A spacious, well-lit shower room with large walk-in shower, WC and wash basin. Perfectly positioned to serve the upstairs bedrooms or accommodate guests.

Bedroom Three
A well-proportioned double bedroom with charming sloped ceilings and a tranquil outlook.

Bedroom Four / Family Room
Recently converted into a highly versatile space with a kitchenette—currently used as a family room but easily adaptable as a bedroom suite or guest studio. Feature balcony-style doors open onto stunning views towards Moel y Golfa.

Outside Spaces

Courtyard Terrace
An attractive enclosed terrace with wooden decking, perfect for socialising or al fresco dining. The terrace overlooks a lawned area enclosed by traditional picket fencing all set against the backdrop of uninterrupted countryside views.

Views & Setting
Positioned to maximise the panoramic views across unspoilt countryside, the house and garden offer complete privacy.

Garage & Workshop
A detached outbuilding comprising:
– Timber Garage (10m x 6m): Open fronted with ample vehicle space
– Secure Workshop (61 sqm)
– Loft Storage / Potential Workspace (61 sqm)
– Mains electricity and water connected.

Stables
Constructed in 2024, the timber-clad stable comprises:
– Three Loose Boxes (3.4m x 3.4m each)
– Concrete floor and walkway, electricity and water supply

Land
Extending to approx. 1.5 acres, the paddock is gently sloping and well-fenced, bordering the Pwll Trewern Brook. The land is classified as Grade 3 Agricultural and offers ample scope for equestrian or smallholding use.

Method of sale
The property is offered for sale by private treaty.

Price
Offers in the region of £1,100,000

Tenure & Possession
Freehold. Vacant possession will be provided on completion.

Services
– Mains Electricity & Water
– Private Drainage System
– Ultrafast Broadband Connection
– Ground Source Heat Pump & Solar PV Panels
– Underfloor water based heating

Feed-In Tariff
The Feed-In Tariff payable from the electricity generated from the solar PV panels will be transferable to the new owner. In 2024 this amounted to £3000. The tariff is payable annually until 27/11/2036.

Planning
Crofters Barn was consented under Powys County Council’s planning reference M21357 and later 24/0863/CLE. The Stables were consented under reference 21/1761/FUL.

Material Information
For mobile and broadband coverage see https://checker.ofcom.org.uk/

Wayleaves Easements & Rights of Way
The property is sold subject to the benefit of all rights including rights of way, whether public or private, light, support, drainage, water and electricity supplies and other rights and obligations, easements and proposed wayleaves from masts, pylons, stays, cables, drains, water,
gas and other pipes, whether specifically referred to or not.

Health & Safety
All viewings are carried out at the sole risk of the viewer and neither the selling agents nor the vendor takes responsibility.

EPC Ratings
EPC Rating B with a potential for A

Council Tax
Council Tax Band G (£3600 per annum (2025)

Local Authority
Powys County Council (www.powys.gov.uk)

Viewings
Viewings are by appointment only by contacting the sole selling agents Carter Jonas.

Directions
Travelling from Shrewsbury along the A458, after entering the village of Middletown, turn left immediately after the public house ‘Hogs Inn’. Continue along Bacheldre Lane for 1 mile over the railway bridge and past Middletown Farm. After 500m from the farm, take the next left turn where Crofters Barn will be found on your left hand side.

The next steps...

Before making an offer on a property you will want to consider your financial situation, your income and outgoings.

Will you finance the purchase of your next property from the sale of an existing property which can put you in a chain, arrange a mortgage through your bank or buy the property outright.

To help you finance your next property purchase, we have a long established relationship with an independent mortgage broker who can discuss your situation with you.

Remember that having a 'mortgage decision in principle' can make you a more attractive buyer when you make an offer on a property. Contact our mortgage advisers for free, no obligation and impartial advice.

Some advantages of a broker are:

  • They do all the legwork for you, working on your behalf with the lender
  • They compare wholesale mortgage rates from a large number of banks and lenders all at once
  • Their wholesale interest rates can be lower than retail (bank branch) interest rates
  • They offer more loan options because they work with numerous banks and lenders
  • They can finance tricky deals because of their knowledge and various lending partners
  • They are typically easier to get in contact with, and are less bureaucratic.

However advantages of working with your bank are:

  • You may be able to build off an existing relationship (and gain discounts if you have a checking or savings account)
  • You may already know the banker who will handle your mortgage
  • Banks may be more accountable than a smaller shop
  • They may offer lower interest rates in some cases
  • Their ability to add mortgage to existing banking profile and make automatic payments from linked account.

When you see a property you are interested in on our website, call us 24/7 to arrange a viewing. Or if you prefer, get in touch via our website and we will call you back to find a time to view the property that suits you.

Once you’ve found a property you want to buy, it’s time to make an offer. A bit of negotiation is to be expected, however don't offer so little that you end up in a lengthy negotiation process, as you might lose the property altogether if someone else makes a higher bid.

If other offers have been made on a property we aren't legally able to tell you what they are, but we may indicate if they were close to the asking price.

If you have a property to sell, why not see how we can help you.

Or if you’re considering letting your property, we can take the stress out of managing your rental, and our award winning lettings team offer a service that can be tailored to your needs.

Combined with nearly 170 years of experience and one of the highest customer satisfaction scores in the industry, Carter Jonas is the perfect property partner.

Why not book a free, no obligation valuation of your property and find out how Carter Jonas can help you make your next move.

Key property details
Era
Modern
Locality
Rural
Property type
Detached Land
Total land
2 acres (0.809 hectares)
Carter Jonas reference
SYR250023
Thinking of selling?

Find out what your property is worth