Kings Lane, Longcot SN7

Kings Lane, Longcot SN7

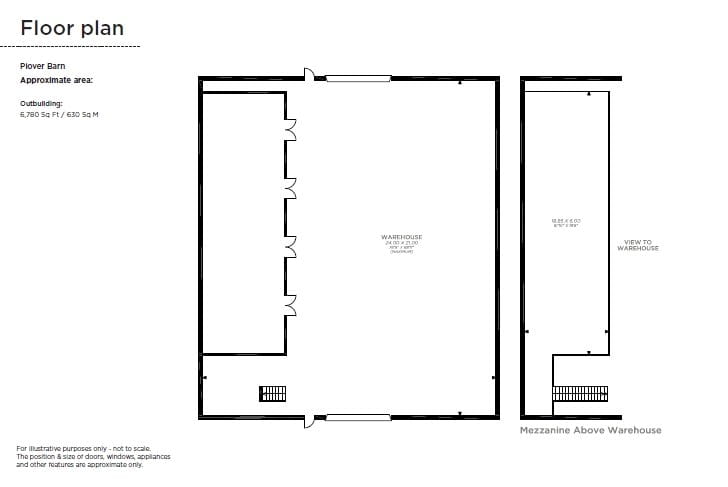
Outbuildings

Guide price £1,950,000
Military College 1.4 miles
Station Road 2.3 miles
High Street Surgery 2.7 miles

UNDER OFFER - Secluded barn conversion with B8 barn and land all located in the heart of the Vale of the White Horse.

Plover Barn is an extensive 6 bed barn conversion with far reaching views toward the White Horse at Uffington.

Adjacent is a portal framed barn (Use Class B8) with high eaves and used for storage purposes. The property is surrounded by a mix of pasture and arable land.

In all extending to 31.62 acres (12.80 ha).

For sale by private treaty as a whole

Location
The property is located on the junction of the A420 and Kings Lane between Faringdon (3 miles) and Watchfield (2 miles) and located just north of Longcot village itself. Good access routes enable travel to both Oxford (20 miles) and Swindon (8 miles) with mainline trains available from both and Didcot (20 miles). The A420, A34 A419 and M4 are all withing easy reach and provide access to the wider road network.

Amenties
Longcot itself has a number of local amenities including a village hall, pub and primary school. Further more extensive amenities including supermarkets and high street shopping are available in Faringdon, Swindon and Oxford.
Schooling is well catered including the highly regarded St Hugh’s School in Carswell and Pinewood School at Bourton.

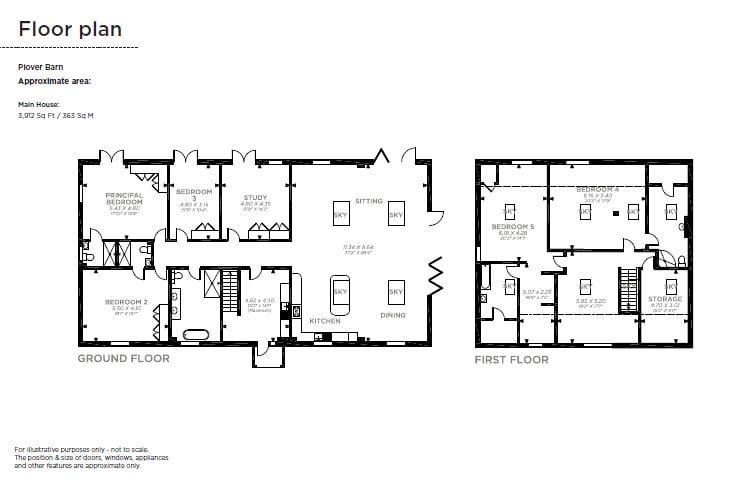
Plover Barn
Situated at the end of a private entrance Plover Barn comprises a well situated barn conversion with superb views of the White Horse.

Originally a class Q conversion the product is a modern 2 storey barn of just under 4,000 sq.ft with an excellent open plan living space.
The ground floor hosts an hall entrance and utility, open plan kitchen / dining / living area, WC and 4 double bedrooms.

Stairs from the entrance hall lead to the first floor with storage / bedrooms (limited head height) and bathroom.

To the exterior is a garden and grounds backing onto fields with driveway parking.

Buildings
Extending to some 6,780 sq.ft the steel portal framed building provides superbly high eaves, concrete floors, cladding and roller shutter doors.
Consent was granted in March 2020 under reference P19/V3352/N4C for conversion to Storage and Distribution (Use Class B8). It is currently let out and used for storage and a gym but resents an opportunity for alternative uses, subject to additional planning.

Land
Boasting an enviable outlook the land is level and wraps around the core holding to the north. A mix of arable and well-established pasture fields with hedged or fenced boundaries.

Classified as a mix of Grade 2 and 3 the land comprises a mix of freely draining, shallow lime rich soils over chalk or limestone sandy and base rich loamy and clayey soils all well suited to their current uses.

Method of Sale
The freehold title is offered for sale as a whole by private treaty.

Tenure & Possession
The property is anticipated to be sold with the benefit of vacant possession barring the unexpired term of on the storage barn. Further details on request.

Planning
The property has previously had planning explored on the yard without success albeit in the agents opinion there remains latent potential for redevelopment of parts.

Services
The property has mains water and electricity supplies. Heating is oil fired and drainage is to a private system. For broadband and mobile connectivity please make your own enquiries and refer to https://checker.ofcom.org.uk/

Wayleaves, Easements & Rights of Way
The property is sold subject to the benefit of all rights including rights of way, whether public or private, light, support, drainage, water and electricity supplies and other rights and obligations, easements and proposed wayleaves from masts, pylons, stays, cables, drains, water, gas and other pipes whether specifically referred to or not.

Health & Safety
All viewings are carried out at the sole risk of the viewer and neither the selling agent nor the vendor takes responsibility.
Sporting Timber & Mineral Rights
The mineral, sporting and timber rights are included in the sale of the freehold in so far as that are owned.

The next steps...

Before making an offer on a property you will want to consider your financial situation, your income and outgoings.

Will you finance the purchase of your next property from the sale of an existing property which can put you in a chain, arrange a mortgage through your bank or buy the property outright.

To help you finance your next property purchase, we have a long established relationship with an independent mortgage broker who can discuss your situation with you.

Remember that having a 'mortgage decision in principle' can make you a more attractive buyer when you make an offer on a property. Contact our mortgage advisers for free, no obligation and impartial advice.

Some advantages of a broker are:

  • They do all the legwork for you, working on your behalf with the lender
  • They compare wholesale mortgage rates from a large number of banks and lenders all at once
  • Their wholesale interest rates can be lower than retail (bank branch) interest rates
  • They offer more loan options because they work with numerous banks and lenders
  • They can finance tricky deals because of their knowledge and various lending partners
  • They are typically easier to get in contact with, and are less bureaucratic.

However advantages of working with your bank are:

  • You may be able to build off an existing relationship (and gain discounts if you have a checking or savings account)
  • You may already know the banker who will handle your mortgage
  • Banks may be more accountable than a smaller shop
  • They may offer lower interest rates in some cases
  • Their ability to add mortgage to existing banking profile and make automatic payments from linked account.

When you see a property you are interested in on our website, call us 24/7 to arrange a viewing. Or if you prefer, get in touch via our website and we will call you back to find a time to view the property that suits you.

Once you’ve found a property you want to buy, it’s time to make an offer. A bit of negotiation is to be expected, however don't offer so little that you end up in a lengthy negotiation process, as you might lose the property altogether if someone else makes a higher bid.

If other offers have been made on a property we aren't legally able to tell you what they are, but we may indicate if they were close to the asking price.

If you have a property to sell, why not see how we can help you.

Or if you’re considering letting your property, we can take the stress out of managing your rental, and our award winning lettings team offer a service that can be tailored to your needs.

Combined with nearly 170 years of experience and one of the highest customer satisfaction scores in the industry, Carter Jonas is the perfect property partner.

Why not book a free, no obligation valuation of your property and find out how Carter Jonas can help you make your next move.

Key property details
Property attributes
Detached
Era
Modern
Additional attributes
Outbuildings
Locality
Rural
Total sq ft
1,377,367.2 (127,961.7 Sq M) approx.
Carter Jonas reference
NWR250011

Suggested properties

Here are a few properties you might like, but within 2 extra miles of your current search

Guide price £525,000
4 bedroom house
Guide price £750,000
4 bedroom house
Guide price £1,350,000
5 bedroom house
Asking price £675,000
4 bedroom bungalow
Guide price £665,000
4 bedroom house
Guide price £1,150,000
4 bedroom house
Guide price £1,000,000
4 bedroom house
Guide price £1,500,000
4 bedroom house
Guide price £780,000
3 bedroom house
Guide price £2,250,000
5 bedroom house
Asking price £475,000
2 bedroom flat
Asking price £1,495,000
4 bedroom house
Thinking of selling?

Find out what your property is worth