Lot 3: Manor Farm Development Site, Lopen TA13

Lot 3: Manor Farm Development Site, Lopen TA13

Freehold

Guide price £275,000
Crewkerne 3.9 miles
The Church 1.4 miles
St. James Street Church 1.9 miles

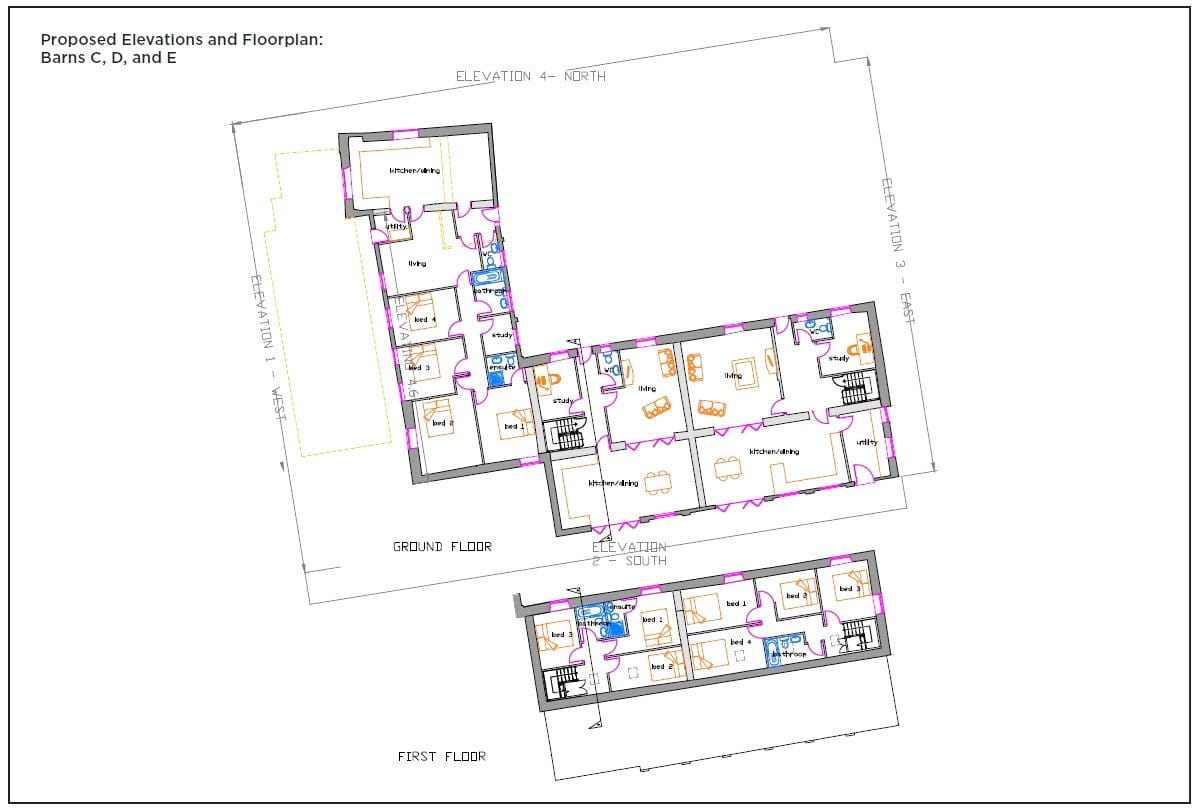
A range of farm buildings for redevelopment within a rural/village-edge development site. Curtilage listed traditional barns for conversion to five dwellings and a modern building with permission for conversion to a further detached dwelling. Lot 3 extends to 4.70 acres.

Lot 3: Manor Farm, Lopen, South Petherton, Somerset, TA13 5JN

A range of farm buildings for redevelopment within a rural/village-edge development site.

In all, Lot 3 extends to 4.70 acres.

For sale by private treaty.


Location
Manor Farm is located on the edge of the village of Lopen, between South Petherton, Crewkerne, Ilminster, and Yeovil, with easy access to the A303. The nearby village of South Petherton offers a school, public house, pharmacy, small hospital, and a small range of shops. The nearby towns of Ilminster, Yeovil and Crewkerne offer a wider range of facilities including a mainline railway service at Crewkerne and Yeovil to London Waterloo.


Lot 3
Lot 3 comprises the range of traditional buildings for conversion to five dwellings, together with the modern building for conversion to a dwelling, all within 4.70 acres.


Method of Sale
Lot 3: The property is offered for sale by private treaty with a guide price of £275,000.


Planning
Planning and Listed Building Consent was granted under application reference 24/00793/FUL for the conversion of a range of traditional curtilage listed buildings to five dwellings in August 2025.

Barn G: permission was granted for conversion to a four-bedroom dwelling under application reference 24/00941/PAMB in May 2024.


Listing Status
Manor Farmhouse is Grade II Listed. Some of the buildings will therefore be listed within the curtilage of the farmhouse.


Covenants
The site will be sold subject to a covenant not to develop more than eight dwellings thereon and not to use the buildings for agricultural purposes.


Rights of Way
A right of access will be reserved over the first section of the drive to the paddock adjoining Kitchens Lane. The relevant access rights will be granted for the lots, depending on/if the property is sold as a whole or in separate lots.


Services
The property is serviced by mains water and electricity with private drainage. New service connections will be required to service the proposed development. The relevant rights for service installations will be granted for the lots, depending on/if the property is sold as a whole or in separate lots.


Health & Safety
Potential purchasers should take particular care when inspecting the site. The property comprises a former farmstead with many potentially uneven and steep ground surfaces. Potential purchasers should not attempt to access the first-floor areas of any of the farm buildings, as the timbers have not been tested and may not be sound.


Local Authority
Somerset Council
(formerly South Somerset District Council)


Viewings
Viewings are by appointment with the selling agents, Carter Jonas, on 01823 428290.


Directions
At the Lopenhead roundabout, follow signs to Lopen. Shortly after entering the village, turn right onto Frog Street and continue onto Water Street and around the sharp right-hand corner onto Kitchens Lane. The entrance to Manor Farm will be found on the left-hand side.


What Three Words
/// merchant.afternoon.fruit

The next steps...

Before making an offer on a property you will want to consider your financial situation, your income and outgoings.

Will you finance the purchase of your next property from the sale of an existing property which can put you in a chain, arrange a mortgage through your bank or buy the property outright.

To help you finance your next property purchase, we have a long established relationship with an independent mortgage broker who can discuss your situation with you.

Remember that having a 'mortgage decision in principle' can make you a more attractive buyer when you make an offer on a property. Contact our mortgage advisers for free, no obligation and impartial advice.

Some advantages of a broker are:

  • They do all the legwork for you, working on your behalf with the lender
  • They compare wholesale mortgage rates from a large number of banks and lenders all at once
  • Their wholesale interest rates can be lower than retail (bank branch) interest rates
  • They offer more loan options because they work with numerous banks and lenders
  • They can finance tricky deals because of their knowledge and various lending partners
  • They are typically easier to get in contact with, and are less bureaucratic.

However advantages of working with your bank are:

  • You may be able to build off an existing relationship (and gain discounts if you have a checking or savings account)
  • You may already know the banker who will handle your mortgage
  • Banks may be more accountable than a smaller shop
  • They may offer lower interest rates in some cases
  • Their ability to add mortgage to existing banking profile and make automatic payments from linked account.

When you see a property you are interested in on our website, call us 24/7 to arrange a viewing. Or if you prefer, get in touch via our website and we will call you back to find a time to view the property that suits you.

Once you’ve found a property you want to buy, it’s time to make an offer. A bit of negotiation is to be expected, however don't offer so little that you end up in a lengthy negotiation process, as you might lose the property altogether if someone else makes a higher bid.

If other offers have been made on a property we aren't legally able to tell you what they are, but we may indicate if they were close to the asking price.

If you have a property to sell, why not see how we can help you.

Or if you’re considering letting your property, we can take the stress out of managing your rental, and our award winning lettings team offer a service that can be tailored to your needs.

Combined with nearly 170 years of experience and one of the highest customer satisfaction scores in the industry, Carter Jonas is the perfect property partner.

Why not book a free, no obligation valuation of your property and find out how Carter Jonas can help you make your next move.

Key property details
Tenure
Freehold
Total sq ft
204,732 (19,020.2 Sq M) approx.
Carter Jonas reference
TAU250094

Suggested properties

Here are a few properties you might like, but within 2 extra miles of your current search

Guide price £175,000
cottage
Guide price £795,000
7 bedroom house
Asking price £265,000
3 bedroom bungalow
Guide price £250,000
house
Guide price £225,000
development plot
Guide price £300,000
4 bedroom house
Thinking of selling?

Find out what your property is worth